Woning Henk Nijlandstraat 22 Hoek Van Holland

Henk Nijlandstraat 22, 3151MJ Hoek Van Holland

Ontvang updates voor Strand en Duin

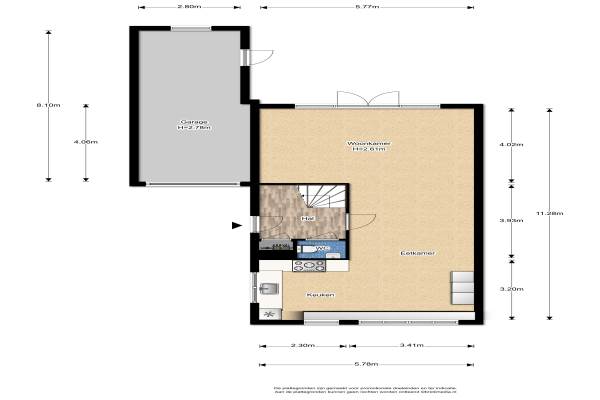
Het adres van deze woning uit 2012 is Henk Nijlandstraat 22 te Hoek Van Holland. Het pand heeft een oppervlakte van 179m² en een perceeloppervlakte van 335m² en heeft 6 kamers kamers waarvan 4 slaapkamers. De geschatte waarde van deze woning is € 500.000.

Bekijk alle woningen in Strand en Duin

Gegevens van Eengezinswoning, 2-onder-1-kapwoning

Bouwjaar
2012
Geschatte waarde
€ 500.000
Oppervlakte
179 m2
Inhoud
736 m3
Aantal kamers
6 kamers
Slaapkamers
4
Badkamers
1 badkamer en 2 aparte toiletten
Soort bouw
Bestaande bouw
Eigendomssituatie
Volle eigendom
Ligging
Aan water en in woonwijk
Tuin
Achtertuin, voortuin en zijtuin
Achtertuin
167 m² (17,98m diep en 9,3m breed)

Voorzieningen in de buurt

Boodschappen1,5 km
Grote supermarkt1,5 km
Cafetaria1,0 km
Restaurant0,7 km
Huisarts1,7 km
Ziekenhuis3,6 km
Kinderdagverblijf1,2 km
BSO1,2 km
Alle voorzieningen in Strand en Duin

Binnenkijken bij Henk Nijlandstraat 22 te Hoek Van Holland

Meer meldingen in deze omgeving

Binnenkijken bij
Vrijdag 9-1-2026
Kaapweg 43, 3151XW Hoek van Holland

Binnenkijken bij
Woensdag 7-1-2026
's-Gravenzandseweg 238, 3151TV Hoek van Holland

112 melding
Donderdag 1-1-2026 om 02:37
Dirk van den Burgweg, 3151XM Hoek van Holland

112 melding
Donderdag 1-1-2026 om 02:37
Dirk van den Burgweg, 3151XM Hoek van Holland

112 melding
Dinsdag 30-12-2025 om 18:44
Strandweg, 3151HV Hoek van Holland

Nieuw bedrijf
December 2025
Jaap van de Scheurhof 7, 3151MG Hoek van Holland

Nieuw bedrijf
December 2025
Koning Willem III weg 313, 3151HJ Hoek van Holland

Nieuw bedrijf
December 2025
Stationsweg 10, 3151HS Hoek van Holland

Direct een e-mail ontvangen bij nieuwe meldingen in deze regio?

Meld je dan GRATIS aan voor de Oozo Alert service voor Strand en Duin

Instellen

Meer nieuws in Strand en Duin

Weten hoe eenvoudig het is om af te vallen? Zonder pillen en smeersels en zonder je in het zweet te werken!
Kijk op eenvoudig-afvallen.nl

© 2012 - 2026 OOZO.nl - info@oozo.nl - Gegevens verwijderen? | Disclaimer | Privacy statement