Woning Chris van Abkoudehof 26 Rotterdam

Chris van Abkoudehof 26, 3076LT Rotterdam

Ontvang updates voor Lombardijen

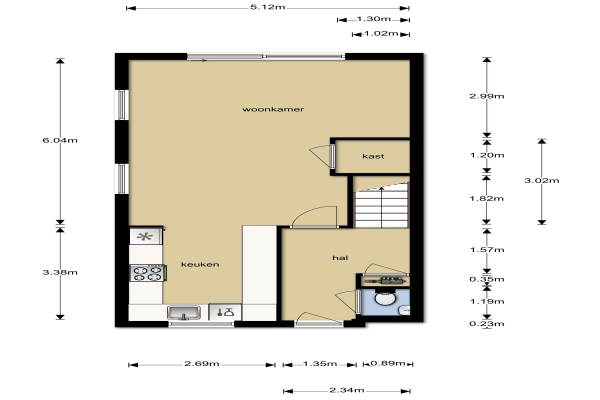
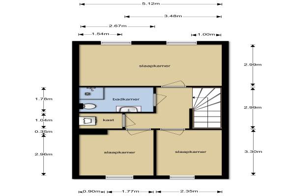
Het adres van deze woning uit 2012 is Chris van Abkoudehof 26 te Rotterdam. Het pand heeft een oppervlakte van 96m² en een perceeloppervlakte van 172m² en heeft 4 kamers kamers waarvan 3 slaapkamers. De geschatte waarde van deze woning is € 300.000.

Bekijk alle woningen in Lombardijen

Gegevens van Eengezinswoning, eindwoning

Bouwjaar
2012
Geschatte waarde
€ 300.000
Oppervlakte
96 m2
Inhoud
345 m3
Aantal kamers
4 kamers
Slaapkamers
3
Badkamers
2 aparte toiletten
Soort bouw
Bestaande bouw
Eigendomssituatie
Volle eigendom
Ligging
Aan rustige weg en in woonwijk
Tuin
Achtertuin en voortuin
Achtertuin
79 m² (14,3m diep en 5,54m breed)

Voorzieningen in de buurt

Boodschappen0,4 km
Grote supermarkt0,6 km
Cafetaria0,4 km
Restaurant0,4 km
Huisarts0,4 km
Ziekenhuis2,1 km
Kinderdagverblijf0,4 km
BSO0,5 km
Alle voorzieningen in Lombardijen

Binnenkijken bij Chris van Abkoudehof 26 te Rotterdam

Meer meldingen in deze omgeving

112 melding
Dinsdag 27-1-2026 om 12:27
Schopenhauerweg, 3076DT Rotterdam

112 melding
Dinsdag 27-1-2026 om 04:11
Aesopusplaats, 3076BA Rotterdam

Binnenkijken bij
Dinsdag 27-1-2026
Fontenellestraat 10, 3076VD Rotterdam

112 melding
Maandag 26-1-2026 om 22:05
Molièreweg, Rotterdam

112 melding
Maandag 26-1-2026 om 22:05
Molièreweg, 3076GJ Rotterdam

112 melding
Maandag 26-1-2026 om 14:05
Goldonistraat, 3076WE Rotterdam

112 melding
Maandag 26-1-2026 om 13:22
Goldonistraat, 3076WE Rotterdam

112 melding
Maandag 26-1-2026 om 11:04
Van Langendonckstraat, 3076SK Rotterdam

Direct een e-mail ontvangen bij nieuwe meldingen in deze regio?

Meld je dan GRATIS aan voor de Oozo Alert service voor Lombardijen

Instellen

Meer nieuws in Lombardijen

Weten hoe eenvoudig het is om af te vallen? Zonder pillen en smeersels en zonder je in het zweet te werken!
Kijk op eenvoudig-afvallen.nl

© 2012 - 2026 OOZO.nl - info@oozo.nl - Gegevens verwijderen? | Disclaimer | Privacy statement