Woning Dickensstraat 18 Rotterdam

Dickensstraat 18, 3076SE Rotterdam

Ontvang updates voor Lombardijen

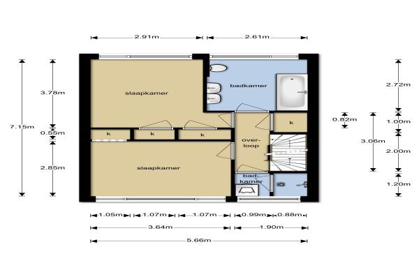
Het adres van deze woning uit 1961 is Dickensstraat 18 te Rotterdam. Het pand heeft een oppervlakte van 102m² en een perceeloppervlakte van 193m² en heeft 4 kamers kamers waarvan 3 slaapkamers. De geschatte waarde van deze woning is € 219.000.

Bekijk alle woningen in Lombardijen

Gegevens van Eengezinswoning, hoekwoning

Bouwjaar
1961
Geschatte waarde
€ 219.000
Oppervlakte
102 m2
Inhoud
331 m3
Aantal kamers
4 kamers
Slaapkamers
3
Badkamers
1 apart toilet
Soort bouw
Bestaande bouw
Eigendomssituatie
Volle eigendom
Ligging
Aan rustige weg en in woonwijk
Tuin
Achtertuin, voortuin en zijtuin
Achtertuin
38 m² (5m diep en 7,5m breed)

Voorzieningen in de buurt

Boodschappen0,4 km
Grote supermarkt0,6 km
Cafetaria0,4 km
Restaurant0,4 km
Huisarts0,4 km
Ziekenhuis2,1 km
Kinderdagverblijf0,4 km
BSO0,5 km
Alle voorzieningen in Lombardijen

Binnenkijken bij Dickensstraat 18 te Rotterdam

Meer meldingen in deze omgeving

112 melding
Woensdag 22-4-2026 om 00:24
Voltairestraat, 3076TM Rotterdam

112 melding
Dinsdag 21-4-2026 om 13:34
Molièreweg, 3076GM Rotterdam

112 melding
Dinsdag 21-4-2026 om 10:17
Pascalweg, 3076JK Rotterdam

112 melding
Dinsdag 21-4-2026 om 05:30
Molièreweg, 3076GR Rotterdam

112 melding
Dinsdag 21-4-2026 om 04:18
Aristotelesstraat, 3076BG Rotterdam

112 melding
Maandag 20-4-2026 om 16:27
Homerusstraat, 3076LH Rotterdam

112 melding
Maandag 20-4-2026 om 15:55
Menno ter Braakstraat, 3076EG Rotterdam

112 melding
Maandag 20-4-2026 om 14:42
Spinozaweg, 3076EW Rotterdam

Direct een e-mail ontvangen bij nieuwe meldingen in deze regio?

Meld je dan GRATIS aan voor de Oozo Alert service voor Lombardijen

Instellen

Meer nieuws in Lombardijen

Weten hoe eenvoudig het is om af te vallen? Zonder pillen en smeersels en zonder je in het zweet te werken!
Kijk op eenvoudig-afvallen.nl

© 2012 - 2026 OOZO.nl - info@oozo.nl - Gegevens verwijderen? | Disclaimer | Privacy statement