Woning Drinkwaterweg 128 Rotterdam

Drinkwaterweg 128, 3063JC Rotterdam

Ontvang updates voor De Esch

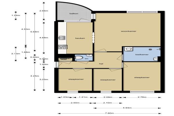
Het adres van deze woning uit 1989 is Drinkwaterweg 128 te Rotterdam. Het pand heeft een oppervlakte van 86m² en heeft 4 kamers kamers waarvan 3 slaapkamers. De geschatte waarde van deze woning is € 200.000.

Bekijk alle woningen in De Esch

Gegevens van Portiekwoning (appartement)

Bouwjaar
1989
Geschatte waarde
€ 200.000
Oppervlakte
86 m2
Inhoud
263 m3
Aantal kamers
4 kamers
Slaapkamers
3
Soort bouw
Bestaande bouw
Ligging
In woonwijk en vrij uitzicht
Tuin
Zonneterras

Voorzieningen in de buurt

Boodschappen0,7 km
Grote supermarkt0,7 km
Cafetaria0,7 km
Restaurant0,7 km
Huisarts0,7 km
Ziekenhuis2,5 km
Kinderdagverblijf0,6 km
BSO1,1 km
Alle voorzieningen in De Esch

Binnenkijken bij Drinkwaterweg 128 te Rotterdam

Meer meldingen in deze omgeving

112 melding
Zaterdag 23-5-2026 om 19:15
Snelfilterweg, 3063JD Rotterdam

112 melding
Zaterdag 23-5-2026 om 16:14
Nesserdijk, 3063NE Rotterdam

112 melding
Zaterdag 23-5-2026 om 12:13
Abram van Rijckevorselweg, 3062CX Rotterdam

112 melding
Zaterdag 23-5-2026 om 12:12
Abram van Rijckevorselweg, 3062CX Rotterdam

112 melding
Zaterdag 23-5-2026 om 12:12
Abram van Rijckevorselweg, 3062CX Rotterdam

112 melding
Zaterdag 23-5-2026 om 08:20
Hoge Filterweg, 3063KA Rotterdam

112 melding
Vrijdag 22-5-2026 om 10:31
Buitenbassinweg, 3063TC Rotterdam

Nieuw bedrijf
Mei 2026
Jan ter Laanplaats 49, 3063RS Rotterdam

Direct een e-mail ontvangen bij nieuwe meldingen in deze regio?

Meld je dan GRATIS aan voor de Oozo Alert service voor De Esch

Instellen

Meer nieuws in De Esch

Weten hoe eenvoudig het is om af te vallen? Zonder pillen en smeersels en zonder je in het zweet te werken!
Kijk op eenvoudig-afvallen.nl

© 2012 - 2026 OOZO.nl - info@oozo.nl - Gegevens verwijderen? | Disclaimer | Privacy statement