Woning Hoveniersstraat 7 Rotterdam

Hoveniersstraat 7, 3031PC Rotterdam

Ontvang updates voor Rubroek

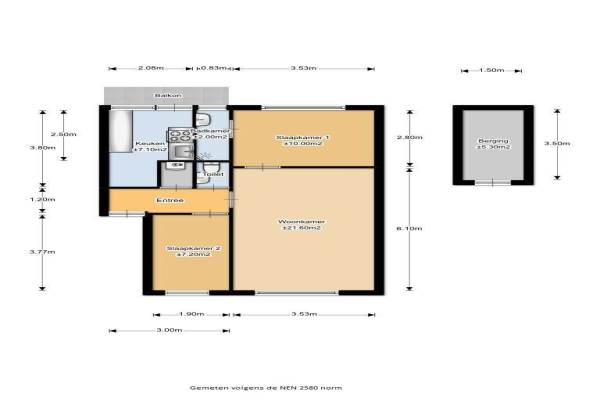
Het adres van deze woning uit 1952 is Hoveniersstraat 7 te Rotterdam. Het pand heeft een oppervlakte van 56m² en heeft 3 kamers kamers waarvan 2 slaapkamers. De geschatte waarde van deze woning is € 177.500.

Bekijk alle woningen in Rubroek

Gegevens van Portiekwoning (appartement)

Bouwjaar
1952
Geschatte waarde
€ 177.500
Oppervlakte
56 m2
Inhoud
160 m3
Aantal kamers
3 kamers
Slaapkamers
2
Badkamers
1 apart toilet
Soort bouw
Bestaande bouw
Ligging
In centrum

Voorzieningen in de buurt

Boodschappen0,2 km
Grote supermarkt0,3 km
Cafetaria0,2 km
Restaurant0,3 km
Huisarts0,4 km
Ziekenhuis1,2 km
Kinderdagverblijf0,3 km
BSO0,4 km
Alle voorzieningen in Rubroek

Binnenkijken bij Hoveniersstraat 7 te Rotterdam

Meer meldingen in deze omgeving

112 melding
Dinsdag 21-4-2026 om 13:42
Palissanderstraat, 3031TR Rotterdam

112 melding
Maandag 20-4-2026 om 23:44
Boezemweg, 3031BH Rotterdam

112 melding
Maandag 20-4-2026 om 20:36
Crooswijkseweg, 3031XD Rotterdam

112 melding
Maandag 20-4-2026 om 06:41
Crooswijkseweg, 3031XD Rotterdam

112 melding
Zondag 19-4-2026 om 20:26
Jonker Fransstraat, 3031AV Rotterdam

112 melding
Zondag 19-4-2026 om 20:11
Jonker Fransstraat, Rotterdam

112 melding
Zondag 19-4-2026 om 20:11
Jonker Fransstraat, Rotterdam

112 melding
Zondag 19-4-2026 om 19:11
Herman Robbersstraat, 3031RJ Rotterdam

Direct een e-mail ontvangen bij nieuwe meldingen in deze regio?

Meld je dan GRATIS aan voor de Oozo Alert service voor Rubroek

Instellen

Meer nieuws in Rubroek

Weten hoe eenvoudig het is om af te vallen? Zonder pillen en smeersels en zonder je in het zweet te werken!
Kijk op eenvoudig-afvallen.nl

© 2012 - 2026 OOZO.nl - info@oozo.nl - Gegevens verwijderen? | Disclaimer | Privacy statement