Woning Vondelweg 19 Rotterdam

Vondelweg 19, 3031PS Rotterdam

Ontvang updates voor Rubroek

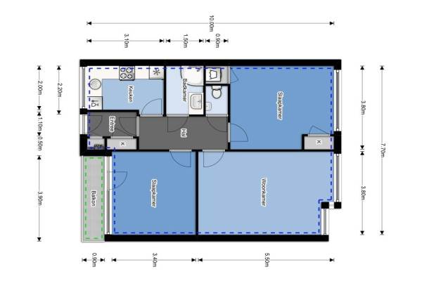
Het adres van deze woning uit 1958 is Vondelweg 19 te Rotterdam. Het pand heeft een oppervlakte van 75m² en heeft 3 kamers kamers waarvan 2 slaapkamers. De geschatte waarde van deze woning is € 209.000.

Bekijk alle woningen in Rubroek

Gegevens van Galerijflat

Bouwjaar
1958
Geschatte waarde
€ 209.000
Oppervlakte
75 m2
Inhoud
250 m3
Aantal kamers
3 kamers
Slaapkamers
2
Badkamers
1 badkamer en 1 apart toilet
Soort bouw
Bestaande bouw
Eigendomssituatie
Volle eigendom
Ligging
In centrum, in woonwijk, vrij uitzicht en open ligging

Voorzieningen in de buurt

Boodschappen0,2 km
Grote supermarkt0,3 km
Cafetaria0,2 km
Restaurant0,3 km
Huisarts0,4 km
Ziekenhuis1,2 km
Kinderdagverblijf0,3 km
BSO0,4 km
Alle voorzieningen in Rubroek

Binnenkijken bij Vondelweg 19 te Rotterdam

Meer meldingen in deze omgeving

112 melding
Woensdag 3-12-2025 om 13:12
Linker Rottekade, 3031WC Rotterdam

Binnenkijken bij
Woensdag 3-12-2025
Boezemweg 167H, 3031BH Rotterdam

Nieuw bedrijf
December 2025
Boezemsingel 133, 3031CA Rotterdam

Nieuw bedrijf
December 2025
Leopoldstraat 22B, 3031SX Rotterdam

Nieuw bedrijf
December 2025
Boezemsingel 115, 3031CA Rotterdam

Nieuw bedrijf
December 2025
Jonker Fransstraat 112A, 3031AX Rotterdam

Nieuw bedrijf
December 2025
Jonker Fransstraat 128D, 3031AZ Rotterdam

Nieuw bedrijf
December 2025
Generaal van der Heijdenstraat 58, 3031XG Rotterdam

Direct een e-mail ontvangen bij nieuwe meldingen in deze regio?

Meld je dan GRATIS aan voor de Oozo Alert service voor Rubroek

Instellen

Meer nieuws in Rubroek

Weten hoe eenvoudig het is om af te vallen? Zonder pillen en smeersels en zonder je in het zweet te werken!
Kijk op eenvoudig-afvallen.nl

© 2012 - 2025 OOZO.nl - info@oozo.nl - Gegevens verwijderen? | Disclaimer | Privacy statement