Woning Elisabethstraat 1 Rotterdam

Elisabethstraat 1, 3063BA Rotterdam

Ontvang updates voor Struisenburg

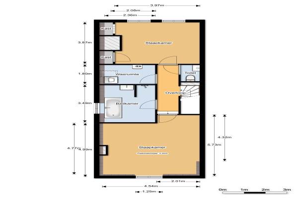
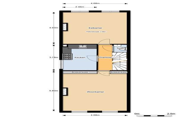
Het adres van deze woning uit 1880 is Elisabethstraat 1 te Rotterdam. Het pand heeft een oppervlakte van 218m² en een perceeloppervlakte van 262m² en heeft 7 kamers kamers waarvan 4 slaapkamers. De geschatte waarde van deze woning is € 695.000.

Bekijk alle woningen in Struisenburg

Gegevens van Herenhuis, hoekwoning

Bouwjaar
1880
Geschatte waarde
€ 695.000
Oppervlakte
218 m2
Inhoud
787 m3
Aantal kamers
7 kamers
Slaapkamers
4
Badkamers
2 badkamers en 2 aparte toiletten
Soort bouw
Bestaande bouw
Eigendomssituatie
Volle eigendom
Tuin
Achtertuin
Achtertuin
94 m² (17m diep en 5,5m breed)

Voorzieningen in de buurt

Boodschappen0,4 km
Grote supermarkt0,7 km
Cafetaria0,4 km
Restaurant0,3 km
Huisarts1,0 km
Ziekenhuis1,0 km
Kinderdagverblijf0,4 km
BSO0,6 km
Alle voorzieningen in Struisenburg

Binnenkijken bij Elisabethstraat 1 te Rotterdam

Meer meldingen in deze omgeving

112 melding
Zondag 16-11-2025 om 11:00
Bosland, Rotterdam

Binnenkijken bij
Zondag 16-11-2025
Struisenburgstraat 48C, 3063BR Rotterdam

Binnenkijken bij
Zondag 16-11-2025
Admiraliteitskade 11B, 3063EB Rotterdam

Binnenkijken bij
Zondag 16-11-2025
Admiraliteitskade 9A01, 3063EA Rotterdam

112 melding
Zaterdag 15-11-2025 om 19:31
Oostmaaslaan, 3063DL Rotterdam

112 melding
Vrijdag 14-11-2025 om 13:42
Admiraliteitskade, 3063ED Rotterdam

112 melding
Vrijdag 14-11-2025 om 05:38
Oostmaaslaan, 3063DK Rotterdam

Binnenkijken bij
Vrijdag 14-11-2025
Oostzeedijk 170C, 3063BL Rotterdam

Direct een e-mail ontvangen bij nieuwe meldingen in deze regio?

Meld je dan GRATIS aan voor de Oozo Alert service voor Struisenburg

Instellen

Meer nieuws in Struisenburg

Weten hoe eenvoudig het is om af te vallen? Zonder pillen en smeersels en zonder je in het zweet te werken!
Kijk op eenvoudig-afvallen.nl

© 2012 - 2025 OOZO.nl - info@oozo.nl - Gegevens verwijderen? | Disclaimer | Privacy statement