Woning Schiekade 576 Rotterdam

Schiekade 576, 3032AZ Rotterdam

Ontvang updates voor Agniesebuurt

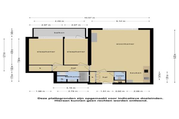
Het adres van deze woning uit 1981 is Schiekade 576 te Rotterdam. Het pand heeft een oppervlakte van 84m² en heeft 3 kamers kamers waarvan 2 slaapkamers. De geschatte waarde van deze woning is € 375.000.

Bekijk alle woningen in Agniesebuurt

Gegevens van Appartement

Bouwjaar
1981
Geschatte waarde
€ 375.000
Oppervlakte
84 m2
Inhoud
225 m3
Aantal kamers
3 kamers
Slaapkamers
2
Badkamers
1 badkamer en 1 apart toilet
Soort bouw
Bestaande bouw
Eigendomssituatie
Erfpacht (einddatum erfpacht: 30-09-2053)
Ligging
In centrum en in woonwijk
Tuin
Balkon aanwezig

Voorzieningen in de buurt

Boodschappen0,2 km
Grote supermarkt0,4 km
Cafetaria0,2 km
Restaurant0,2 km
Huisarts0,4 km
Ziekenhuis1,8 km
Kinderdagverblijf0,4 km
BSO0,7 km
Alle voorzieningen in Agniesebuurt

Binnenkijken bij Schiekade 576 te Rotterdam

Meer meldingen in deze omgeving

112 melding
Vrijdag 19-12-2025 om 07:45
Schiekade, 3032AK Rotterdam

112 melding
Donderdag 18-12-2025 om 16:43
Schout Heynricstraat, 3032SX Rotterdam

112 melding
Donderdag 18-12-2025 om 02:21
Schiekade, 3032AL Rotterdam

112 melding
Donderdag 18-12-2025 om 01:17
Banierstraat, 3032PB Rotterdam

112 melding
Woensdag 17-12-2025 om 15:49
Bergweg, 3032BB Rotterdam

112 melding
Woensdag 17-12-2025 om 13:08
Noordsingel, 3032BD Rotterdam

112 melding
Maandag 15-12-2025 om 16:40
Noordsingel, 3032BL Rotterdam

Faillissement
Maandag 15-12-2025
Schiekade 830, 3032AL Rotterdam

Direct een e-mail ontvangen bij nieuwe meldingen in deze regio?

Meld je dan GRATIS aan voor de Oozo Alert service voor Agniesebuurt

Instellen

Meer nieuws in Agniesebuurt

Weten hoe eenvoudig het is om af te vallen? Zonder pillen en smeersels en zonder je in het zweet te werken!
Kijk op eenvoudig-afvallen.nl

© 2012 - 2025 OOZO.nl - info@oozo.nl - Gegevens verwijderen? | Disclaimer | Privacy statement