Woning Schepenstraat 52 Rotterdam

Schepenstraat 52, 3039NK Rotterdam

Ontvang updates voor Blijdorp

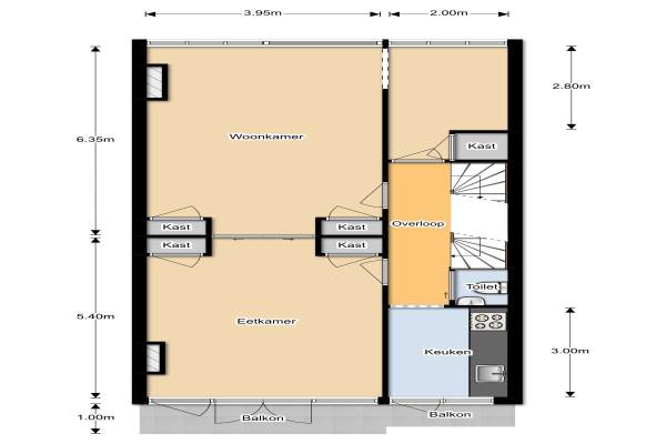
Het adres van deze woning uit 1932 is Schepenstraat 52 te Rotterdam. Het pand heeft een oppervlakte van 109m² en heeft 5 kamers kamers waarvan 3 slaapkamers. De geschatte waarde van deze woning is € 369.500.

Bekijk alle woningen in Blijdorp

Gegevens van Bovenwoning (appartement)

Bouwjaar
1932
Geschatte waarde
€ 369.500
Oppervlakte
109 m2
Inhoud
305 m3
Aantal kamers
5 kamers
Slaapkamers
3
Badkamers
2 aparte toiletten
Soort bouw
Bestaande bouw
Eigendomssituatie
Volle eigendom
Ligging
In centrum en in woonwijk

Voorzieningen in de buurt

Boodschappen0,3 km
Grote supermarkt0,3 km
Cafetaria0,2 km
Restaurant0,2 km
Huisarts0,3 km
Ziekenhuis1,6 km
Kinderdagverblijf0,4 km
BSO0,4 km
Alle voorzieningen in Blijdorp

Binnenkijken bij Schepenstraat 52 te Rotterdam

Meer meldingen in deze omgeving

112 melding
Zaterdag 28-3-2026 om 15:10
Schepenstraat, 3039NK Rotterdam

112 melding
Vrijdag 27-3-2026 om 12:14
Statenweg, 3039HP Rotterdam

112 melding
Vrijdag 27-3-2026 om 11:11
Van Aerssenlaan, 3039KE Rotterdam

Binnenkijken bij
Vrijdag 27-3-2026
Noorderhavenkade 77A, 3039RK Rotterdam

112 melding
Donderdag 26-3-2026 om 22:11
Statenweg, 3039JK Rotterdam

112 melding
Donderdag 26-3-2026 om 16:18
Van Nideckstraat, 3039TM Rotterdam

Binnenkijken bij
Donderdag 26-3-2026
Van Houtenstraat 3C, 3039PA Rotterdam

Binnenkijken bij
Donderdag 26-3-2026
Van der Meydestraat 27A02, 3039TG Rotterdam

Direct een e-mail ontvangen bij nieuwe meldingen in deze regio?

Meld je dan GRATIS aan voor de Oozo Alert service voor Blijdorp

Instellen

Meer nieuws in Blijdorp

Weten hoe eenvoudig het is om af te vallen? Zonder pillen en smeersels en zonder je in het zweet te werken!
Kijk op eenvoudig-afvallen.nl

© 2012 - 2026 OOZO.nl - info@oozo.nl - Gegevens verwijderen? | Disclaimer | Privacy statement