Woning Statenweg 108 Rotterdam

Statenweg 108, 3039JK Rotterdam

Ontvang updates voor Blijdorp

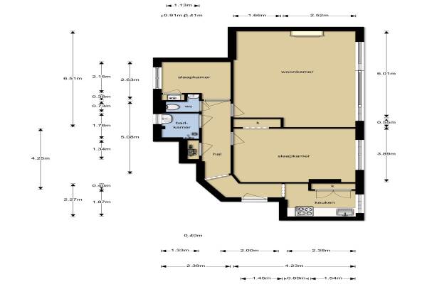
Het adres van deze woning uit 1937 is Statenweg 108 te Rotterdam. Het pand heeft een oppervlakte van 66m² en heeft 3 kamers kamers waarvan 2 slaapkamers. De geschatte waarde van deze woning is € 200.000.

Bekijk alle woningen in Blijdorp

Gegevens van Portiekwoning (appartement)

Bouwjaar
1937
Geschatte waarde
€ 200.000
Oppervlakte
66 m2
Inhoud
227 m3
Aantal kamers
3 kamers
Slaapkamers
2
Badkamers
1 badkamer en 1 apart toilet
Soort bouw
Bestaande bouw
Eigendomssituatie
Volle eigendom
Ligging
Aan park en in woonwijk

Voorzieningen in de buurt

Boodschappen0,3 km
Grote supermarkt0,3 km
Cafetaria0,2 km
Restaurant0,2 km
Huisarts0,3 km
Ziekenhuis1,6 km
Kinderdagverblijf0,4 km
BSO0,4 km
Alle voorzieningen in Blijdorp

Binnenkijken bij Statenweg 108 te Rotterdam

Meer meldingen in deze omgeving

112 melding
Woensdag 12-11-2025 om 15:37
Schimmelpenninckstraat, Rotterdam

112 melding
Woensdag 12-11-2025 om 15:37
Schimmelpenninckstraat, Rotterdam

112 melding
Dinsdag 11-11-2025 om 22:17
Noorderbocht, 3039MA Rotterdam

112 melding
Dinsdag 11-11-2025 om 20:28
Noorderhavenkade, 3039RE Rotterdam

Binnenkijken bij
Dinsdag 11-11-2025
Statenweg 150A, 3039JN Rotterdam

Binnenkijken bij
Dinsdag 11-11-2025
Nolensstraat 72C, 3039PX Rotterdam

Binnenkijken bij
Dinsdag 11-11-2025
Schepenstraat 66A, 3039NL Rotterdam

Binnenkijken bij
Dinsdag 11-11-2025
Sourystraat 20B, 3039ST Rotterdam

Direct een e-mail ontvangen bij nieuwe meldingen in deze regio?

Meld je dan GRATIS aan voor de Oozo Alert service voor Blijdorp

Instellen

Meer nieuws in Blijdorp

Weten hoe eenvoudig het is om af te vallen? Zonder pillen en smeersels en zonder je in het zweet te werken!
Kijk op eenvoudig-afvallen.nl

© 2012 - 2025 OOZO.nl - info@oozo.nl - Gegevens verwijderen? | Disclaimer | Privacy statement