Woning Statenweg 4 Rotterdam

Statenweg 4, 3039JA Rotterdam

Ontvang updates voor Blijdorp

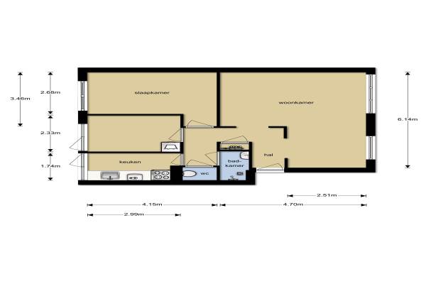
Het adres van deze woning uit 1950 is Statenweg 4 te Rotterdam. Het pand heeft een oppervlakte van 60m² en heeft 3 kamers kamers waarvan 2 slaapkamers. De geschatte waarde van deze woning is € 245.000.

Bekijk alle woningen in Blijdorp

Gegevens van Benedenwoning (appartement)

Bouwjaar
1950
Geschatte waarde
€ 245.000
Oppervlakte
60 m2
Inhoud
165 m3
Aantal kamers
3 kamers
Slaapkamers
2
Badkamers
1 badkamer en 1 apart toilet
Soort bouw
Bestaande bouw
Eigendomssituatie
Volle eigendom
Ligging
Aan rustige weg en in woonwijk
Tuin
Achtertuin
Achtertuin
46 m² (6,5m diep en 7m breed)

Voorzieningen in de buurt

Boodschappen0,3 km
Grote supermarkt0,3 km
Cafetaria0,2 km
Restaurant0,2 km
Huisarts0,3 km
Ziekenhuis1,6 km
Kinderdagverblijf0,4 km
BSO0,4 km
Alle voorzieningen in Blijdorp

Binnenkijken bij Statenweg 4 te Rotterdam

Meer meldingen in deze omgeving

112 melding
Zaterdag 14-2-2026 om 20:41
Boreelstraat, 3039WG Rotterdam

Binnenkijken bij
Zaterdag 14-2-2026
Sonmansstraat 72B, 3039DM Rotterdam

112 melding
Vrijdag 13-2-2026 om 21:13
Schimmelpenninckstraat, 3039KS Rotterdam

112 melding
Vrijdag 13-2-2026 om 21:13
Schimmelpenninckstraat, 3039KS Rotterdam

Binnenkijken bij
Vrijdag 13-2-2026
Sonmansstraat 17A02, 3039DG Rotterdam

Binnenkijken bij
Donderdag 12-2-2026
Nobelstraat 9A, 3039SC Rotterdam

112 melding
Woensdag 11-2-2026 om 22:49
Statensingel, Rotterdam

Binnenkijken bij
Woensdag 11-2-2026
Bijlwerffstraat 33B01, 3039VE Rotterdam

Direct een e-mail ontvangen bij nieuwe meldingen in deze regio?

Meld je dan GRATIS aan voor de Oozo Alert service voor Blijdorp

Instellen

Meer nieuws in Blijdorp

Weten hoe eenvoudig het is om af te vallen? Zonder pillen en smeersels en zonder je in het zweet te werken!
Kijk op eenvoudig-afvallen.nl

© 2012 - 2026 OOZO.nl - info@oozo.nl - Gegevens verwijderen? | Disclaimer | Privacy statement