Woning Uiterdijk 104 Pernis Rotterdam

Uiterdijk 104, 3195GK Pernis Rotterdam

Ontvang updates voor Pernis

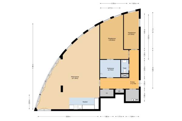
Het adres van deze woning uit 2007 is Uiterdijk 104 te Pernis Rotterdam. Het pand heeft een oppervlakte van 130m² en heeft 3 kamers kamers waarvan 2 slaapkamers. De geschatte waarde van deze woning is € 370.000.

Bekijk alle woningen in Pernis

Gegevens van Galerijflat (appartement)

Bouwjaar
2007
Geschatte waarde
€ 370.000
Oppervlakte
130 m2
Inhoud
390 m3
Aantal kamers
3 kamers
Slaapkamers
2
Badkamers
1 badkamer en 1 apart toilet
Soort bouw
Bestaande bouw
Eigendomssituatie
Volle eigendom

Voorzieningen in de buurt

Boodschappen0,4 km
Grote supermarkt0,5 km
Cafetaria0,4 km
Restaurant0,4 km
Huisarts0,5 km
Ziekenhuis5,1 km
Kinderdagverblijf0,5 km
BSO0,5 km
Alle voorzieningen in Pernis

Binnenkijken bij Uiterdijk 104 te Pernis Rotterdam

Meer meldingen in deze omgeving

112 melding
Woensdag 31-12-2025 om 05:15
Oud Pernisseweg, 3195AT Pernis Rotterdam

112 melding
Woensdag 31-12-2025 om 05:15
Oud Pernisseweg, 3195AT Pernis Rotterdam

112 melding
Woensdag 31-12-2025 om 04:59
Oud Pernisseweg, 3195AT Pernis Rotterdam

112 melding
Zondag 28-12-2025 om 02:19
Murraystraat, 3195VK Pernis Rotterdam

112 melding
Zaterdag 27-12-2025 om 16:16
Uiterdijk, 3195GL Pernis Rotterdam

112 melding
Zaterdag 27-12-2025 om 08:40
Corneliahof, 3195RS Pernis Rotterdam

112 melding
Zaterdag 27-12-2025 om 00:53
Burgemeester van Esstraat, 3195AK Pernis Rotterdam

Nieuw bedrijf
December 2025
Pastoriedijk 212, 3195HK Pernis Rotterdam

Direct een e-mail ontvangen bij nieuwe meldingen in deze regio?

Meld je dan GRATIS aan voor de Oozo Alert service voor Pernis

Instellen

Meer nieuws in Pernis

Weten hoe eenvoudig het is om af te vallen? Zonder pillen en smeersels en zonder je in het zweet te werken!
Kijk op eenvoudig-afvallen.nl

© 2012 - 2025 OOZO.nl - info@oozo.nl - Gegevens verwijderen? | Disclaimer | Privacy statement