Woning Geert van Oorschotstraat 10 Rotterdam

Geert van Oorschotstraat 10, 3059TS Rotterdam

Ontvang updates voor Nesselande

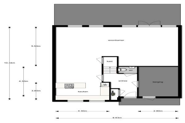
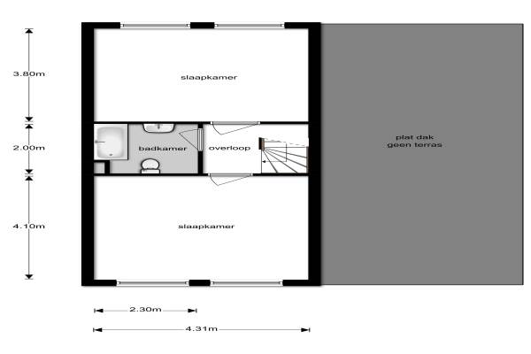
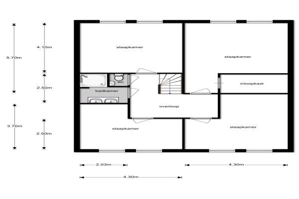
Het adres van deze woning uit 2004 is Geert van Oorschotstraat 10 te Rotterdam. Het pand heeft een oppervlakte van 210m² en een perceeloppervlakte van 256m² en heeft 7 kamers kamers waarvan 6 slaapkamers. De geschatte waarde van deze woning is € 649.500.

Bekijk alle woningen in Nesselande

Gegevens van Eengezinswoning, eindwoning

Bouwjaar
2004
Geschatte waarde
€ 649.500
Oppervlakte
210 m2
Inhoud
670 m3
Aantal kamers
7 kamers
Slaapkamers
6
Badkamers
2 badkamers en 1 apart toilet
Soort bouw
Bestaande bouw
Eigendomssituatie
Volle eigendom
Ligging
Aan water, aan rustige weg en in woonwijk
Tuin
Achtertuin en voortuin
Achtertuin
90 m² (10m diep en 9m breed)

Voorzieningen in de buurt

Boodschappen1,1 km
Grote supermarkt1,1 km
Cafetaria1,0 km
Restaurant1,2 km
Huisarts1,1 km
Ziekenhuis1,4 km
Kinderdagverblijf0,6 km
BSO0,7 km
Alle voorzieningen in Nesselande

Binnenkijken bij Geert van Oorschotstraat 10 te Rotterdam

Meer meldingen in deze omgeving

112 melding
Maandag 8-12-2025 om 16:01
Charley Tooropsingel, 3059WG Rotterdam

112 melding
Maandag 8-12-2025 om 16:01
Charley Tooropsingel, 3059WG Rotterdam

112 melding
Maandag 8-12-2025 om 13:32
Kretalaan, 3059XL Rotterdam

112 melding
Maandag 8-12-2025 om 12:50
Kretalaan, 3059XL Rotterdam


Binnenlands nieuws
Maandag 8-12-2025
Nesselande

112 melding
Maandag 8-12-2025 om 10:27
Marcel Duchampplein, 3059RD Rotterdam

112 melding
Maandag 8-12-2025 om 08:10
Cesar Domelastraat, 3059PM Rotterdam

Direct een e-mail ontvangen bij nieuwe meldingen in deze regio?

Meld je dan GRATIS aan voor de Oozo Alert service voor Nesselande

Instellen

Meer nieuws in Nesselande

Weten hoe eenvoudig het is om af te vallen? Zonder pillen en smeersels en zonder je in het zweet te werken!
Kijk op eenvoudig-afvallen.nl

© 2012 - 2025 OOZO.nl - info@oozo.nl - Gegevens verwijderen? | Disclaimer | Privacy statement