Woning Kobelaan 322 Rotterdam

Kobelaan 322, 3067MD Rotterdam

Ontvang updates voor Oosterflank

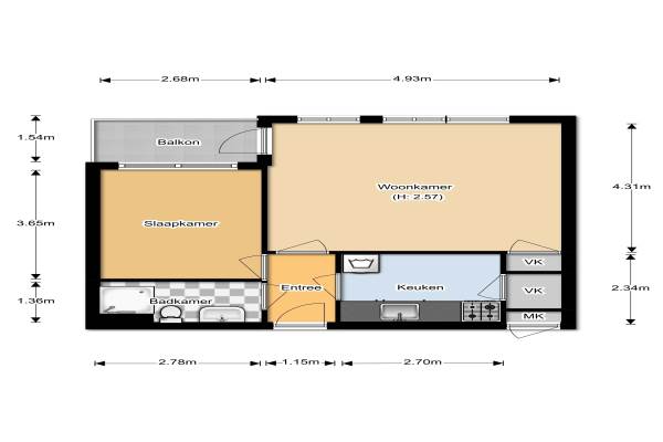
Het adres van deze woning uit 1983 is Kobelaan 322 te Rotterdam. Het pand heeft een oppervlakte van 50m² en heeft 2 kamers kamers waarvan 1 slaapkamers. De geschatte waarde van deze woning is € 112.000.

Bekijk alle woningen in Oosterflank

Gegevens van Portiekflat

Bouwjaar
1983
Geschatte waarde
€ 112.000
Oppervlakte
50 m2
Inhoud
128 m3
Aantal kamers
2 kamers
Slaapkamers
1
Soort bouw
Bestaande bouw

Voorzieningen in de buurt

Boodschappen0,6 km
Grote supermarkt0,5 km
Cafetaria0,4 km
Restaurant0,6 km
Huisarts0,6 km
Ziekenhuis2,2 km
Kinderdagverblijf0,5 km
BSO0,5 km
Alle voorzieningen in Oosterflank

Binnenkijken bij Kobelaan 322 te Rotterdam

Meer meldingen in deze omgeving

112 melding
Zondag 30-11-2025 om 23:39
Schorpioenstraat, Rotterdam

112 melding
Zondag 30-11-2025 om 10:10
Akkabapad, 3067MP Rotterdam

112 melding
Zondag 30-11-2025 om 10:09
Akkabapad, 3067MP Rotterdam

112 melding
Zaterdag 29-11-2025 om 18:10
Korte Poolsterstraat, 3067LZ Rotterdam

112 melding
Zaterdag 29-11-2025 om 15:34
Tweelingenstraat, 3067KZ Rotterdam

112 melding
Zaterdag 29-11-2025 om 07:45
Poolsterplein, 3067LW Rotterdam

112 melding
Zaterdag 29-11-2025 om 03:30
Burgaslaan, Rotterdam

112 melding
Zaterdag 29-11-2025 om 03:04
Burgaslaan, 3067ML Rotterdam

Direct een e-mail ontvangen bij nieuwe meldingen in deze regio?

Meld je dan GRATIS aan voor de Oozo Alert service voor Oosterflank

Instellen

Meer nieuws in Oosterflank

Weten hoe eenvoudig het is om af te vallen? Zonder pillen en smeersels en zonder je in het zweet te werken!
Kijk op eenvoudig-afvallen.nl

© 2012 - 2025 OOZO.nl - info@oozo.nl - Gegevens verwijderen? | Disclaimer | Privacy statement