Woning Huub van den Brulestraat 103 Rotterdam

Huub van den Brulestraat 103, 3065PG Rotterdam

Ontvang updates voor 's Gravenland

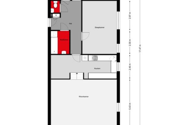
Het adres van deze woning uit 1999 is Huub van den Brulestraat 103 te Rotterdam. Het pand heeft een oppervlakte van 110m² en heeft 3 kamers kamers waarvan 2 slaapkamers. De geschatte waarde van deze woning is € 495.000.

Bekijk alle woningen in 's Gravenland

Gegevens van Benedenwoning (appartement)

Bouwjaar
1999
Geschatte waarde
€ 495.000
Oppervlakte
110 m2
Inhoud
385 m3
Aantal kamers
3 kamers
Slaapkamers
2
Badkamers
1 badkamer en 1 apart toilet
Soort bouw
Bestaande bouw
Eigendomssituatie
Eigendom belast met erfpacht
Ligging
Aan water, in woonwijk en vrij uitzicht
Tuin
Zonneterras

Voorzieningen in de buurt

Boodschappen1,2 km
Grote supermarkt0,6 km
Cafetaria1,0 km
Restaurant0,9 km
Huisarts1,2 km
Ziekenhuis2,3 km
Kinderdagverblijf0,9 km
BSO0,9 km
Alle voorzieningen in 's Gravenland

Binnenkijken bij Huub van den Brulestraat 103 te Rotterdam

Meer meldingen in deze omgeving

112 melding
Vrijdag 9-1-2026 om 20:51
Gerard van Houweningepad, 3065JD Rotterdam

Binnenkijken bij
Vrijdag 9-1-2026
Jacques Dutilhweg 681, 3065JH Rotterdam

Binnenkijken bij
Vrijdag 9-1-2026
Jacques Dutilhweg 623, 3065JH Rotterdam

112 melding
Donderdag 8-1-2026 om 23:30
Capelsebrugpad, 3065SM Rotterdam

112 melding
Woensdag 7-1-2026 om 19:03
Huub van den Brulestraat, 3065PG Rotterdam

112 melding
Dinsdag 6-1-2026 om 01:26
Capelsebrugpad, 3065SM Rotterdam

112 melding
Dinsdag 6-1-2026 om 00:28
Marinus Batenburgplein, 3065KL Rotterdam

112 melding
Maandag 5-1-2026 om 09:05
Kralingse Kerklaan, Rotterdam

Direct een e-mail ontvangen bij nieuwe meldingen in deze regio?

Meld je dan GRATIS aan voor de Oozo Alert service voor 's Gravenland

Instellen

Meer nieuws in 's Gravenland

Weten hoe eenvoudig het is om af te vallen? Zonder pillen en smeersels en zonder je in het zweet te werken!
Kijk op eenvoudig-afvallen.nl

© 2012 - 2026 OOZO.nl - info@oozo.nl - Gegevens verwijderen? | Disclaimer | Privacy statement