Woning Ogier van Cralingenpark 34 Rotterdam

Ogier van Cralingenpark 34, 3065BB Rotterdam

Ontvang updates voor 's Gravenland

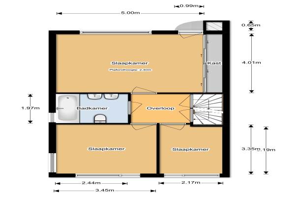
Het adres van deze woning uit 1986 is Ogier van Cralingenpark 34 te Rotterdam. Het pand heeft een oppervlakte van 112m² en een perceeloppervlakte van 170m² en heeft 5 kamers kamers waarvan 4 slaapkamers. De geschatte waarde van deze woning is € 405.000.

Bekijk alle woningen in 's Gravenland

Gegevens van Eengezinswoning, tussenwoning

Bouwjaar
1986
Geschatte waarde
€ 405.000
Oppervlakte
112 m2
Inhoud
396 m3
Aantal kamers
5 kamers
Slaapkamers
4
Badkamers
1 badkamer
Soort bouw
Bestaande bouw
Eigendomssituatie
Volle eigendom
Ligging
Aan rustige weg en in woonwijk
Tuin
Achtertuin
Achtertuin
48 m² (8,37m diep en 5,69m breed)

Voorzieningen in de buurt

Boodschappen1,2 km
Grote supermarkt0,6 km
Cafetaria1,0 km
Restaurant0,9 km
Huisarts1,2 km
Ziekenhuis2,3 km
Kinderdagverblijf0,9 km
BSO0,9 km
Alle voorzieningen in 's Gravenland

Binnenkijken bij Ogier van Cralingenpark 34 te Rotterdam

Meer meldingen in deze omgeving

Nieuw bedrijf
Maart 2026
Kornelis van Tollaan 61, 3065DA Rotterdam

112 melding
Maandag 9-3-2026 om 07:11
Huub van den Brulestraat, 3065PG Rotterdam

Nieuw bedrijf
Maart 2026
's-Gravenweg 687E, 3065SC Rotterdam

Nieuw bedrijf
Maart 2026
Pieter van Rijsselstraat 36, 3065HA Rotterdam

112 melding
Zondag 8-3-2026 om 18:23
Jacques Dutilhweg, 3065JH Rotterdam

112 melding
Zaterdag 7-3-2026 om 14:41
Lilian Ngoyiweg, 3065EG Rotterdam

112 melding
Zaterdag 7-3-2026 om 03:15
Jacques Dutilhweg, 3065KA Rotterdam

Binnenkijken bij
Zaterdag 7-3-2026
Marinus Batenburgplein 42, 3065KL Rotterdam

Direct een e-mail ontvangen bij nieuwe meldingen in deze regio?

Meld je dan GRATIS aan voor de Oozo Alert service voor 's Gravenland

Instellen

Meer nieuws in 's Gravenland

Weten hoe eenvoudig het is om af te vallen? Zonder pillen en smeersels en zonder je in het zweet te werken!
Kijk op eenvoudig-afvallen.nl

© 2012 - 2026 OOZO.nl - info@oozo.nl - Gegevens verwijderen? | Disclaimer | Privacy statement