Woning Toon van Vlietstraat 27 Rotterdam

Toon van Vlietstraat 27, 3069ZP Rotterdam

Ontvang updates voor Zevenkamp

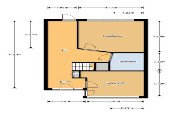
Het adres van deze woning uit 1993 is Toon van Vlietstraat 27 te Rotterdam. Het pand heeft een oppervlakte van 195m² en een perceeloppervlakte van 131m² en heeft 7 kamers kamers waarvan 6 slaapkamers. De geschatte waarde van deze woning is € 265.000.

Bekijk alle woningen in Zevenkamp

Gegevens van Eengezinswoning, tussenwoning (bedrijfs- of dienstwoning)

Bouwjaar
1993
Geschatte waarde
€ 265.000
Oppervlakte
195 m2
Inhoud
585 m3
Aantal kamers
7 kamers
Slaapkamers
6
Badkamers
2 badkamers en 1 apart toilet
Soort bouw
Bestaande bouw
Eigendomssituatie
Gemeentelijke erfpacht (einddatum erfpacht: 17-12-2091)
Ligging
In woonwijk
Tuin
Achtertuin
Achtertuin
66 m² (10,5m diep en 6,25m breed)

Voorzieningen in de buurt

Boodschappen0,6 km
Grote supermarkt0,6 km
Cafetaria0,6 km
Restaurant0,7 km
Huisarts0,8 km
Ziekenhuis3,0 km
Kinderdagverblijf0,4 km
BSO0,4 km
Alle voorzieningen in Zevenkamp

Binnenkijken bij Toon van Vlietstraat 27 te Rotterdam

Meer meldingen in deze omgeving


112 melding
Woensdag 12-11-2025 om 21:15
F. Bordewijkstraat, 3069WB Rotterdam

112 melding
Woensdag 12-11-2025 om 18:01
Tochtenweg, 3069XZ Rotterdam

112 melding
Woensdag 12-11-2025 om 15:44
Aar, 3068HA Rotterdam

112 melding
Dinsdag 11-11-2025 om 23:19
Kooikerweg, 3069WP Rotterdam

112 melding
Dinsdag 11-11-2025 om 13:21
Zevenkampse Ring, 3068PZ Rotterdam

Binnenkijken bij
Dinsdag 11-11-2025
Paul Whitemansingel 22, 3069XV Rotterdam

Binnenkijken bij
Dinsdag 11-11-2025
Ernest Claespad 29, 3069JS Rotterdam

Direct een e-mail ontvangen bij nieuwe meldingen in deze regio?

Meld je dan GRATIS aan voor de Oozo Alert service voor Zevenkamp

Instellen

Meer nieuws in Zevenkamp

Weten hoe eenvoudig het is om af te vallen? Zonder pillen en smeersels en zonder je in het zweet te werken!
Kijk op eenvoudig-afvallen.nl

© 2012 - 2025 OOZO.nl - info@oozo.nl - Gegevens verwijderen? | Disclaimer | Privacy statement