Woning Vedel 6 Rotterdam

Vedel 6, 3068HV Rotterdam

Ontvang updates voor Zevenkamp

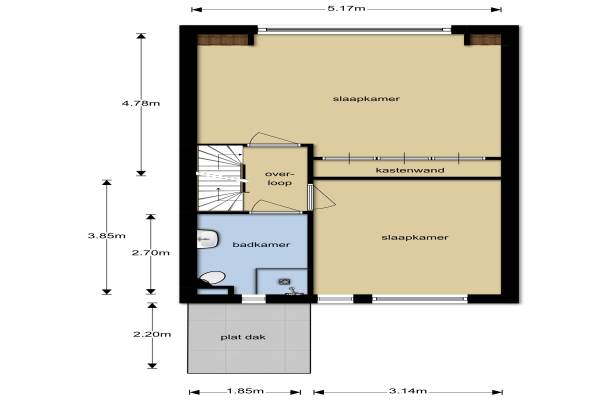
Het adres van deze woning uit 1981 is Vedel 6 te Rotterdam. Het pand heeft een oppervlakte van 125m² en een perceeloppervlakte van 139m² en heeft 4 kamers kamers waarvan 3 slaapkamers. De geschatte waarde van deze woning is € 268.000.

Bekijk alle woningen in Zevenkamp

Gegevens van Eengezinswoning, tussenwoning

Bouwjaar
1981
Geschatte waarde
€ 268.000
Oppervlakte
125 m2
Inhoud
340 m3
Aantal kamers
4 kamers
Slaapkamers
3
Badkamers
1 badkamer en 1 apart toilet
Soort bouw
Bestaande bouw
Eigendomssituatie
Volle eigendom
Ligging
Aan rustige weg en in woonwijk
Tuin
Achtertuin en voortuin
Achtertuin
54 m² (10,2m diep en 5,33m breed)

Voorzieningen in de buurt

Boodschappen0,6 km
Grote supermarkt0,6 km
Cafetaria0,6 km
Restaurant0,7 km
Huisarts0,8 km
Ziekenhuis3,0 km
Kinderdagverblijf0,4 km
BSO0,4 km
Alle voorzieningen in Zevenkamp

Binnenkijken bij Vedel 6 te Rotterdam

Meer meldingen in deze omgeving

112 melding
Woensdag 31-12-2025 om 22:43
Imkerstraat, 3068GX Rotterdam

112 melding
Woensdag 31-12-2025 om 19:53
Griendwerkerstraat, 3068GZ Rotterdam

112 melding
Woensdag 31-12-2025 om 17:06
Zevenkampse Ring, Rotterdam

112 melding
Woensdag 31-12-2025 om 17:06
Zevenkampse Ring, Rotterdam

112 melding
Woensdag 31-12-2025 om 12:30
Kooikerweg, 3069WP Rotterdam

112 melding
Woensdag 31-12-2025 om 12:30
Kooikerweg, 3069WP Rotterdam

Nieuw bedrijf
December 2025
Erroll Garnerstraat 10, 3069XE Rotterdam

Nieuw bedrijf
December 2025
Schollevaartse Dreef 4, 3068KK Rotterdam

Direct een e-mail ontvangen bij nieuwe meldingen in deze regio?

Meld je dan GRATIS aan voor de Oozo Alert service voor Zevenkamp

Instellen

Meer nieuws in Zevenkamp

Weten hoe eenvoudig het is om af te vallen? Zonder pillen en smeersels en zonder je in het zweet te werken!
Kijk op eenvoudig-afvallen.nl

© 2012 - 2025 OOZO.nl - info@oozo.nl - Gegevens verwijderen? | Disclaimer | Privacy statement