Woning Herman Teirlinckstraat 44 Rotterdam

Herman Teirlinckstraat 44, 3069JT Rotterdam

Ontvang updates voor Zevenkamp

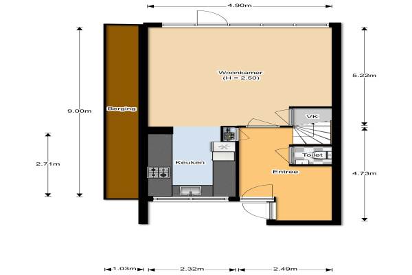
Het adres van deze woning uit 1984 is Herman Teirlinckstraat 44 te Rotterdam. Het pand heeft een oppervlakte van 110m² en een perceeloppervlakte van 147m² en heeft 4 kamers kamers waarvan 3 slaapkamers. De geschatte waarde van deze woning is € 250.000.

Bekijk alle woningen in Zevenkamp

Gegevens van Eengezinswoning, hoekwoning

Bouwjaar
1984
Geschatte waarde
€ 250.000
Oppervlakte
110 m2
Inhoud
366 m3
Aantal kamers
4 kamers
Slaapkamers
3
Badkamers
1 badkamer en 1 apart toilet
Soort bouw
Bestaande bouw
Eigendomssituatie
Volle eigendom
Ligging
Aan rustige weg en in woonwijk
Tuin
Achtertuin
Achtertuin
90 m² (15m diep en 6m breed)

Voorzieningen in de buurt

Boodschappen0,6 km
Grote supermarkt0,6 km
Cafetaria0,6 km
Restaurant0,7 km
Huisarts0,8 km
Ziekenhuis3,0 km
Kinderdagverblijf0,4 km
BSO0,4 km
Alle voorzieningen in Zevenkamp

Binnenkijken bij Herman Teirlinckstraat 44 te Rotterdam

Meer meldingen in deze omgeving

112 melding
Dinsdag 30-12-2025 om 11:25
Aar, 3068HA Rotterdam

112 melding
Dinsdag 30-12-2025 om 10:02
Zevenkampse Ring, 3068PZ Rotterdam

112 melding
Dinsdag 30-12-2025 om 10:02
Zevenkampse Ring, 3068PZ Rotterdam

112 melding
Dinsdag 30-12-2025 om 09:57
Zevenkampse Ring, 3068PZ Rotterdam

112 melding
Dinsdag 30-12-2025 om 08:02
Zevenkampse Ring, 3068PZ Rotterdam

Nieuw bedrijf
December 2025
Jan Jacob Slauerhoffstraat 5, 3069JV Rotterdam

Nieuw bedrijf
December 2025
Amer 5, 3068GA Rotterdam

Nieuw bedrijf
December 2025
Erroll Garnerstraat 10, 3069XE Rotterdam

Direct een e-mail ontvangen bij nieuwe meldingen in deze regio?

Meld je dan GRATIS aan voor de Oozo Alert service voor Zevenkamp

Instellen

Meer nieuws in Zevenkamp

Weten hoe eenvoudig het is om af te vallen? Zonder pillen en smeersels en zonder je in het zweet te werken!
Kijk op eenvoudig-afvallen.nl

© 2012 - 2025 OOZO.nl - info@oozo.nl - Gegevens verwijderen? | Disclaimer | Privacy statement