Woning Ridderspoorweg 190 Den Haag

Ridderspoorweg 190, 2565AP Den Haag

Ontvang updates voor Bosjes van Pex

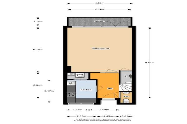
Het adres van deze woning uit 1956 is Ridderspoorweg 190 te Den Haag. Het pand heeft een oppervlakte van 91m² en heeft 4 kamers kamers waarvan 3 slaapkamers. De geschatte waarde van deze woning is € 250.000.

Bekijk alle woningen in Bosjes van Pex

Gegevens van Maisonnette (appartement)

Bouwjaar
1956
Geschatte waarde
€ 250.000
Oppervlakte
91 m2
Inhoud
290 m3
Aantal kamers
4 kamers
Slaapkamers
3
Badkamers
1 badkamer en 1 apart toilet
Soort bouw
Bestaande bouw
Eigendomssituatie
Gemeentelijk eigendom belast met erfpacht (einddatum erfpacht: 31-12-2025)
Ligging
Aan bosrand, aan rustige weg, in woonwijk, vrij uitzicht, beschutte ligging, open ligging en in bosrijke omgeving

Voorzieningen in de buurt

Boodschappen0,5 km
Grote supermarkt0,6 km
Cafetaria0,4 km
Restaurant0,6 km
Huisarts0,6 km
Ziekenhuis2,2 km
Kinderdagverblijf0,7 km
BSO0,5 km
Alle voorzieningen in Bosjes van Pex

Binnenkijken bij Ridderspoorweg 190 te Den Haag

Meer meldingen in deze omgeving

112 melding
Zaterdag 3-1-2026 om 21:45
Ridderspoorweg, 's-Gravenhage

Nieuw bedrijf
Januari 2026
Ereprijsweg 24, 2565AW 's-Gravenhage

112 melding
Woensdag 31-12-2025 om 13:18
Evert Wijtemaweg, 2565AA 's-Gravenhage

112 melding
Dinsdag 30-12-2025 om 01:55
Evert Wijtemaweg, 2565AA 's-Gravenhage

112 melding
Donderdag 25-12-2025 om 20:14
Ridderspoorweg, 's-Gravenhage

Nieuw bedrijf
December 2025
Daal en Bergselaan 11, 2565AB 's-Gravenhage

Nieuw bedrijf
December 2025
Ereprijsweg 12, 2565AV 's-Gravenhage

Nieuw bedrijf
December 2025
Laan van Meerdervoort 965, 2564AJ 's-Gravenhage

Direct een e-mail ontvangen bij nieuwe meldingen in deze regio?

Meld je dan GRATIS aan voor de Oozo Alert service voor Bosjes van Pex

Instellen

Meer nieuws in Bosjes van Pex

Weten hoe eenvoudig het is om af te vallen? Zonder pillen en smeersels en zonder je in het zweet te werken!
Kijk op eenvoudig-afvallen.nl

© 2012 - 2026 OOZO.nl - info@oozo.nl - Gegevens verwijderen? | Disclaimer | Privacy statement