Woning Berberisstraat 103 Den Haag

Berberisstraat 103, 2565WZ Den Haag

Ontvang updates voor Bloemenbuurt-Oost

Het adres van deze woning uit 1921 is Berberisstraat 103 te Den Haag. Het pand heeft een oppervlakte van 114m² en heeft 5 kamers kamers waarvan 3 slaapkamers. De geschatte waarde van deze woning is € 325.000.

Bekijk alle woningen in Bloemenbuurt-Oost

Gegevens van Bovenwoning (appartement)

Bouwjaar
1921
Geschatte waarde
€ 325.000
Oppervlakte
114 m2
Inhoud
415 m3
Aantal kamers
5 kamers
Slaapkamers
3
Badkamers
1 badkamer
Soort bouw
Bestaande bouw
Eigendomssituatie
Gemeentelijke erfpacht
Ligging
Aan rustige weg en in woonwijk
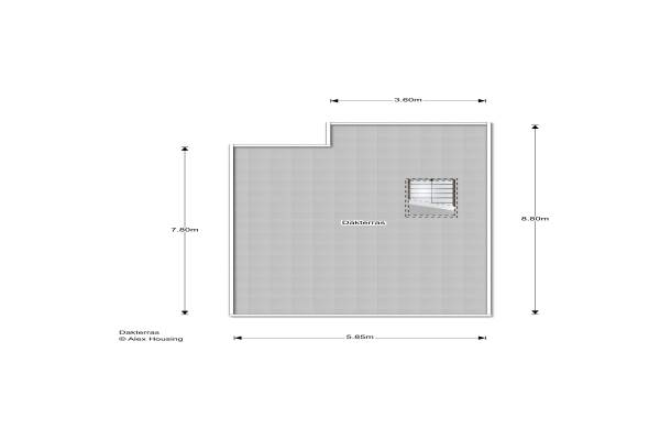
Tuin
Zonneterras

Voorzieningen in de buurt

Boodschappen0,2 km
Grote supermarkt0,3 km
Cafetaria0,2 km
Restaurant0,2 km
Huisarts0,3 km
Ziekenhuis0,9 km
Kinderdagverblijf0,2 km
BSO0,4 km
Alle voorzieningen in Bloemenbuurt-Oost

Binnenkijken bij Berberisstraat 103 te Den Haag

Meer meldingen in deze omgeving

112 melding
Zaterdag 6-12-2025 om 13:17
Anemoonstraat, 2565DD 's-Gravenhage

Nieuw bedrijf
December 2025
Thomsonlaan 217, 2565JC 's-Gravenhage

Nieuw bedrijf
December 2025
Sneeuwbalstraat 196, 2565WH 's-Gravenhage

Nieuw bedrijf
December 2025
Laan van Meerdervoort 545, 2563AW 's-Gravenhage

Nieuw bedrijf
December 2025
Irisstraat 152, 2565TP 's-Gravenhage

Nieuw bedrijf
December 2025
Goudenregenstraat 119, 2565EP 's-Gravenhage

Nieuw bedrijf
December 2025
Goudenregenstraat 119, 2565EP 's-Gravenhage

Nieuw bedrijf
December 2025
Goudenregenstraat 207, 2565ES 's-Gravenhage

Direct een e-mail ontvangen bij nieuwe meldingen in deze regio?

Meld je dan GRATIS aan voor de Oozo Alert service voor Bloemenbuurt-Oost

Instellen

Meer nieuws in Bloemenbuurt-Oost

Weten hoe eenvoudig het is om af te vallen? Zonder pillen en smeersels en zonder je in het zweet te werken!
Kijk op eenvoudig-afvallen.nl

© 2012 - 2025 OOZO.nl - info@oozo.nl - Gegevens verwijderen? | Disclaimer | Privacy statement