Woning Akeleistraat 112 Den Haag

Akeleistraat 112, 2565PA Den Haag

Ontvang updates voor Bloemenbuurt-West

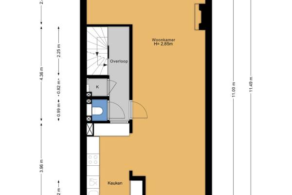
Het adres van deze woning uit 1927 is Akeleistraat 112 te Den Haag. Het pand heeft een oppervlakte van 116m² en heeft 5 kamers kamers waarvan 3 slaapkamers. De geschatte waarde van deze woning is € 450.000.

Bekijk alle woningen in Bloemenbuurt-West

Gegevens van Bovenwoning (dubbel bovenhuis)

Bouwjaar
1927
Geschatte waarde
€ 450.000
Oppervlakte
116 m2
Inhoud
413 m3
Aantal kamers
5 kamers
Slaapkamers
3
Badkamers
1 badkamer en 1 apart toilet
Soort bouw
Bestaande bouw
Eigendomssituatie
Gemeentelijke erfpacht
Ligging
Aan rustige weg en in woonwijk

Voorzieningen in de buurt

Boodschappen0,5 km
Grote supermarkt0,7 km
Cafetaria0,6 km
Restaurant0,5 km
Huisarts0,2 km
Ziekenhuis1,6 km
Kinderdagverblijf0,3 km
BSO0,3 km
Alle voorzieningen in Bloemenbuurt-West

Binnenkijken bij Akeleistraat 112 te Den Haag

Meer meldingen in deze omgeving

112 melding
Donderdag 9-10-2025 om 17:11
Zonnebloemstraat, 's-Gravenhage

112 melding
Donderdag 9-10-2025 om 12:06
Ranonkelstraat, 's-Gravenhage

Binnenkijken bij
Donderdag 9-10-2025
Zonnebloemstraat 10, 2565RX Den Haag

Binnenkijken bij
Donderdag 9-10-2025
Zonnebloemstraat 19, 2565RN Den Haag

Nieuw bedrijf
Oktober 2025
Laan van Meerdervoort 677, 2564AC 's-Gravenhage

112 melding
Woensdag 8-10-2025 om 10:47
Zonnebloemstraat, 's-Gravenhage

112 melding
Vrijdag 3-10-2025 om 19:36
Zonnebloemstraat, 's-Gravenhage

112 melding
Vrijdag 3-10-2025 om 19:35
Zonnebloemstraat, 's-Gravenhage

Direct een e-mail ontvangen bij nieuwe meldingen in deze regio?

Meld je dan GRATIS aan voor de Oozo Alert service voor Bloemenbuurt-West

Instellen

Meer nieuws in Bloemenbuurt-West

Weten hoe eenvoudig het is om af te vallen? Zonder pillen en smeersels en zonder je in het zweet te werken!
Kijk op eenvoudig-afvallen.nl

© 2012 - 2025 OOZO.nl - info@oozo.nl - Gegevens verwijderen? | Disclaimer | Privacy statement