Woning Thomsonlaan 107a Den Haag

Thomsonlaan 107a, 2565HZ Den Haag

Ontvang updates voor Bomenbuurt

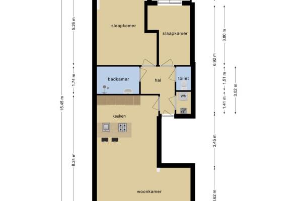
Het adres van deze woning uit 1926 is Thomsonlaan 107a te Den Haag. Het pand heeft een oppervlakte van 81m² en heeft 3 kamers kamers waarvan 2 slaapkamers. De geschatte waarde van deze woning is € 425.000.

Bekijk alle woningen in Bomenbuurt

Gegevens van Bovenwoning (appartement)

Bouwjaar
1926
Geschatte waarde
€ 425.000
Oppervlakte
81 m2
Inhoud
279 m3
Aantal kamers
3 kamers
Slaapkamers
2
Badkamers
1 badkamer en 1 apart toilet
Soort bouw
Bestaande bouw
Eigendomssituatie
Volle eigendom
Ligging
Aan rustige weg en in woonwijk

Voorzieningen in de buurt

Boodschappen0,2 km
Grote supermarkt0,3 km
Cafetaria0,2 km
Restaurant0,2 km
Huisarts0,3 km
Ziekenhuis0,8 km
Kinderdagverblijf0,2 km
BSO0,3 km
Alle voorzieningen in Bomenbuurt

Binnenkijken bij Thomsonlaan 107a te Den Haag

Meer meldingen in deze omgeving

Nieuw bedrijf
December 2025
Segbroeklaan 350, 2565DW 's-Gravenhage

Nieuw bedrijf
December 2025
Acaciastraat 44, 2565KC 's-Gravenhage

Nieuw bedrijf
December 2025
Beeklaan 426, 2562BJ 's-Gravenhage

Nieuw bedrijf
December 2025
Eikstraat 16, 2565MX 's-Gravenhage

Nieuw bedrijf
December 2025
Thomsonlaan 29, 2565KZ 's-Gravenhage

Binnenkijken bij
Zondag 7-12-2025
Thomsonlaan 17F, 2565KX Den Haag

112 melding
Vrijdag 5-12-2025 om 14:13
Pijnboomstraat, 's-Gravenhage

112 melding
Donderdag 4-12-2025 om 21:32
Ahornstraat, 's-Gravenhage

Direct een e-mail ontvangen bij nieuwe meldingen in deze regio?

Meld je dan GRATIS aan voor de Oozo Alert service voor Bomenbuurt

Instellen

Meer nieuws in Bomenbuurt

Weten hoe eenvoudig het is om af te vallen? Zonder pillen en smeersels en zonder je in het zweet te werken!
Kijk op eenvoudig-afvallen.nl

© 2012 - 2025 OOZO.nl - info@oozo.nl - Gegevens verwijderen? | Disclaimer | Privacy statement