Woning Lage Nieuwstraat 410 Den Haag

Lage Nieuwstraat 410, 2512VX Den Haag

Ontvang updates voor Kortenbos

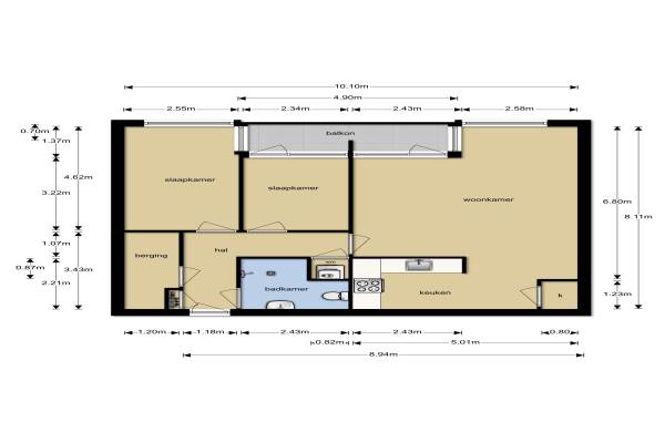
Het adres van deze woning uit 1976 is Lage Nieuwstraat 410 te Den Haag. Het pand heeft een oppervlakte van 75m² en heeft 3 kamers kamers waarvan 2 slaapkamers. De geschatte waarde van deze woning is € 175.000.

Bekijk alle woningen in Kortenbos

Gegevens van Portiekflat (appartement)

Bouwjaar
1976
Geschatte waarde
€ 175.000
Oppervlakte
75 m2
Inhoud
246 m3
Aantal kamers
3 kamers
Slaapkamers
2
Badkamers
1 badkamer
Soort bouw
Bestaande bouw
Eigendomssituatie
Volle eigendom
Ligging
In centrum en in woonwijk

Voorzieningen in de buurt

Boodschappen0,2 km
Grote supermarkt0,4 km
Cafetaria0,2 km
Restaurant0,2 km
Huisarts0,4 km
Ziekenhuis0,7 km
Kinderdagverblijf0,3 km
BSO0,4 km
Alle voorzieningen in Kortenbos

Binnenkijken bij Lage Nieuwstraat 410 te Den Haag

Meer meldingen in deze omgeving

112 melding
Vrijdag 7-11-2025 om 18:29
Lijnbaan, 's-Gravenhage

112 melding
Vrijdag 7-11-2025 om 17:39
Lijnbaan, 's-Gravenhage

112 melding
Vrijdag 7-11-2025 om 15:29
Lijnbaan, 's-Gravenhage

112 melding
Vrijdag 7-11-2025 om 15:26
Lijnbaan, 's-Gravenhage

112 melding
Vrijdag 7-11-2025 om 15:04
Lijnbaan, 's-Gravenhage

112 melding
Vrijdag 7-11-2025 om 14:46
Lijnbaan, 's-Gravenhage

112 melding
Vrijdag 7-11-2025 om 14:35
Lijnbaan, 's-Gravenhage

112 melding
Vrijdag 7-11-2025 om 13:56
Lijnbaan, 's-Gravenhage

Direct een e-mail ontvangen bij nieuwe meldingen in deze regio?

Meld je dan GRATIS aan voor de Oozo Alert service voor Kortenbos

Instellen

Meer nieuws in Kortenbos

Weten hoe eenvoudig het is om af te vallen? Zonder pillen en smeersels en zonder je in het zweet te werken!
Kijk op eenvoudig-afvallen.nl

© 2012 - 2025 OOZO.nl - info@oozo.nl - Gegevens verwijderen? | Disclaimer | Privacy statement