Woning Van Egmondstraat 72 Den Haag

Van Egmondstraat 72, 2581XM Den Haag

Ontvang updates voor Geuzenkwartier

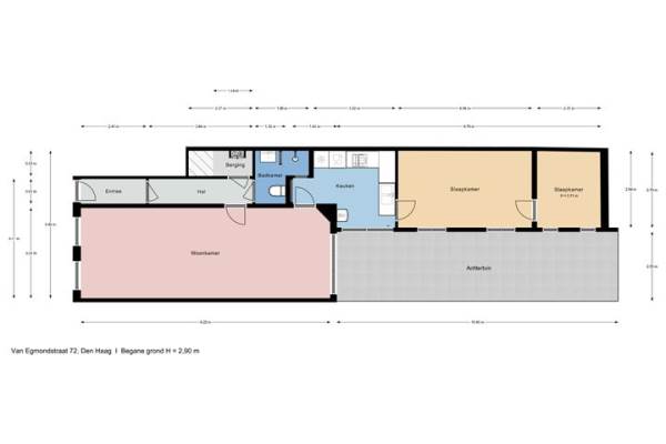
Het adres van deze woning uit 1918 is Van Egmondstraat 72 te Den Haag. Het pand heeft een oppervlakte van 74m² en heeft 3 kamers kamers waarvan 2 slaapkamers. De geschatte waarde van deze woning is € 350.000.

Bekijk alle woningen in Geuzenkwartier

Gegevens van Benedenwoning (appartement)

Bouwjaar
1918
Geschatte waarde
€ 350.000
Oppervlakte
74 m2
Inhoud
265 m3
Aantal kamers
3 kamers
Slaapkamers
2
Badkamers
1 badkamer
Soort bouw
Bestaande bouw
Eigendomssituatie
Volle eigendom
Ligging
In woonwijk
Tuin
Achtertuin
Achtertuin
31 m² (10,40 meter diep en 2,95 meter breed)

Voorzieningen in de buurt

Boodschappen0,2 km
Grote supermarkt0,5 km
Cafetaria0,3 km
Restaurant0,2 km
Huisarts0,6 km
Ziekenhuis1,9 km
Kinderdagverblijf0,4 km
BSO0,4 km
Alle voorzieningen in Geuzenkwartier

Binnenkijken bij Van Egmondstraat 72 te Den Haag

Meer meldingen in deze omgeving

Nieuw bedrijf
Maart 2026
Van Boetzelaerlaan 152, 2581AZ 's-Gravenhage

112 melding
Woensdag 18-3-2026 om 17:24
Ruychaverstraat, 's-Gravenhage

Binnenkijken bij
Zondag 15-3-2026
Willem de Zwijgerlaan 104B, 2582ET Den Haag

Binnenkijken bij
Zaterdag 14-3-2026
Kranenburgweg 33, 2581XW Den Haag

112 melding
Donderdag 12-3-2026 om 13:01
Oesterstraat, 's-Gravenhage

112 melding
Donderdag 12-3-2026 om 09:06
Blois van Treslongstraat, 's-Gravenhage

Faillissement
Woensdag 11-3-2026
Van Boetzelaerlaan 40, 2581AK 's-Gravenhage

Binnenkijken bij
Dinsdag 10-3-2026
Burgemeester van der Werffstraat 89, 2581SG Den Haag

Direct een e-mail ontvangen bij nieuwe meldingen in deze regio?

Meld je dan GRATIS aan voor de Oozo Alert service voor Geuzenkwartier

Instellen

Meer nieuws in Geuzenkwartier

Weten hoe eenvoudig het is om af te vallen? Zonder pillen en smeersels en zonder je in het zweet te werken!
Kijk op eenvoudig-afvallen.nl

© 2012 - 2026 OOZO.nl - info@oozo.nl - Gegevens verwijderen? | Disclaimer | Privacy statement