Woning Westduinweg 141 Den Haag

Westduinweg 141, 2583AA Den Haag

Ontvang updates voor Geuzenkwartier

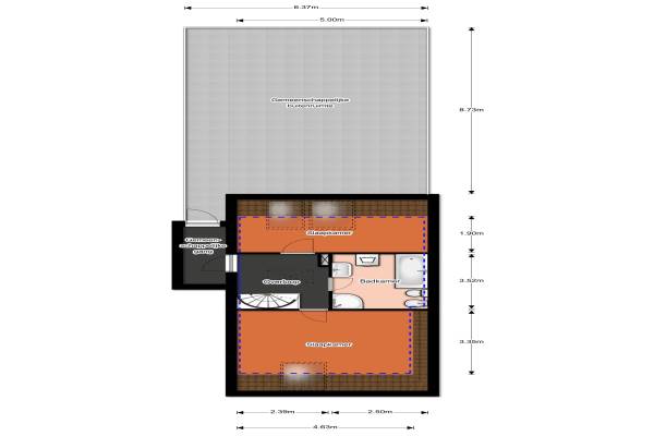
Het adres van deze woning uit 1923 is Westduinweg 141 te Den Haag. Het pand heeft een oppervlakte van 113m² en heeft 4 kamers kamers waarvan 2 slaapkamers. De geschatte waarde van deze woning is € 389.500.

Bekijk alle woningen in Geuzenkwartier

Gegevens van Portiekwoning (dubbel bovenhuis)

Bouwjaar
1923
Geschatte waarde
€ 389.500
Oppervlakte
113 m2
Inhoud
458 m3
Aantal kamers
4 kamers
Slaapkamers
2
Badkamers
1 badkamer en 1 apart toilet
Soort bouw
Bestaande bouw
Eigendomssituatie
Gemeentelijke erfpacht
Ligging
Aan drukke weg

Voorzieningen in de buurt

Boodschappen0,2 km
Grote supermarkt0,5 km
Cafetaria0,3 km
Restaurant0,2 km
Huisarts0,6 km
Ziekenhuis1,9 km
Kinderdagverblijf0,4 km
BSO0,4 km
Alle voorzieningen in Geuzenkwartier

Binnenkijken bij Westduinweg 141 te Den Haag

Meer meldingen in deze omgeving

112 melding
Maandag 26-1-2026 om 12:19
Schelvisstraat, 's-Gravenhage

Binnenkijken bij
Zondag 25-1-2026
Van Lumeystraat 108, 2581XE Den Haag

112 melding
Zaterdag 24-1-2026 om 09:49
Scholstraat, 's-Gravenhage

Nieuw bedrijf
Januari 2026
Van St. Aldegondeplein 17G, 2581TL 's-Gravenhage

Nieuw bedrijf
Januari 2026
Jan van Houtstraat 35, 2581ST 's-Gravenhage

112 melding
Woensdag 21-1-2026 om 08:55
Sonoystraat, 's-Gravenhage

Binnenkijken bij
Woensdag 21-1-2026
Willem de Zwijgerlaan 122, 2582EV Den Haag

Binnenkijken bij
Woensdag 21-1-2026
Blois van Treslongstraat 27, 2581VV Den Haag

Direct een e-mail ontvangen bij nieuwe meldingen in deze regio?

Meld je dan GRATIS aan voor de Oozo Alert service voor Geuzenkwartier

Instellen

Meer nieuws in Geuzenkwartier

Weten hoe eenvoudig het is om af te vallen? Zonder pillen en smeersels en zonder je in het zweet te werken!
Kijk op eenvoudig-afvallen.nl

© 2012 - 2026 OOZO.nl - info@oozo.nl - Gegevens verwijderen? | Disclaimer | Privacy statement