Woning Forellendaal 98 Den Haag

Forellendaal 98, 2553LD Den Haag

Ontvang updates voor Kraayenstein

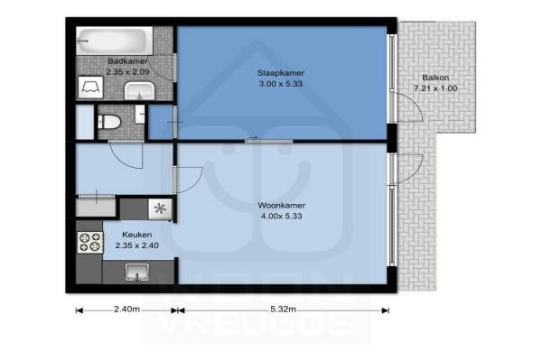
Het adres van deze woning uit 1975 is Forellendaal 98 te Den Haag. Het pand heeft een oppervlakte van 55m² en heeft 2 kamers kamers waarvan 1 slaapkamers. De geschatte waarde van deze woning is € 125.000.

Bekijk alle woningen in Kraayenstein

Gegevens van Portiekflat (appartement)

Bouwjaar
1975
Geschatte waarde
€ 125.000
Oppervlakte
55 m2
Inhoud
160 m3
Aantal kamers
2 kamers
Slaapkamers
1
Soort bouw
Bestaande bouw
Eigendomssituatie
Volle eigendom
Ligging
In woonwijk en vrij uitzicht

Voorzieningen in de buurt

Boodschappen0,6 km
Grote supermarkt1,1 km
Cafetaria0,7 km
Restaurant0,7 km
Huisarts1,8 km
Ziekenhuis3,6 km
Kinderdagverblijf0,8 km
BSO1,0 km
Alle voorzieningen in Kraayenstein

Binnenkijken bij Forellendaal 98 te Den Haag

Meer meldingen in deze omgeving

Nieuw bedrijf
November 2025
T.S. Eliotlaan 2, 2553DG 's-Gravenhage

Nieuw bedrijf
November 2025
Molenbrink 19, 2553GL 's-Gravenhage

Nieuw bedrijf
November 2025
Sigrid Undsetlaan 26, 2553DK 's-Gravenhage

Nieuw bedrijf
November 2025
Abdijbrink 11, 2553GJ 's-Gravenhage

Nieuw bedrijf
November 2025
Abdijbrink 11, 2553GJ 's-Gravenhage

Nieuw bedrijf
November 2025
Forellendaal 536, 2553KC 's-Gravenhage

112 melding
Zondag 9-11-2025 om 13:26
Johan van der Bruggenstraat, 2553NZ 's-Gravenhage

112 melding
Zondag 9-11-2025 om 11:53
De Brink, 's-Gravenhage

Direct een e-mail ontvangen bij nieuwe meldingen in deze regio?

Meld je dan GRATIS aan voor de Oozo Alert service voor Kraayenstein

Instellen

Meer nieuws in Kraayenstein

Weten hoe eenvoudig het is om af te vallen? Zonder pillen en smeersels en zonder je in het zweet te werken!
Kijk op eenvoudig-afvallen.nl

© 2012 - 2025 OOZO.nl - info@oozo.nl - Gegevens verwijderen? | Disclaimer | Privacy statement