Woning Watervogelstraat 312 Den Haag

Watervogelstraat 312, 2492PX Den Haag

Ontvang updates voor De Vissen

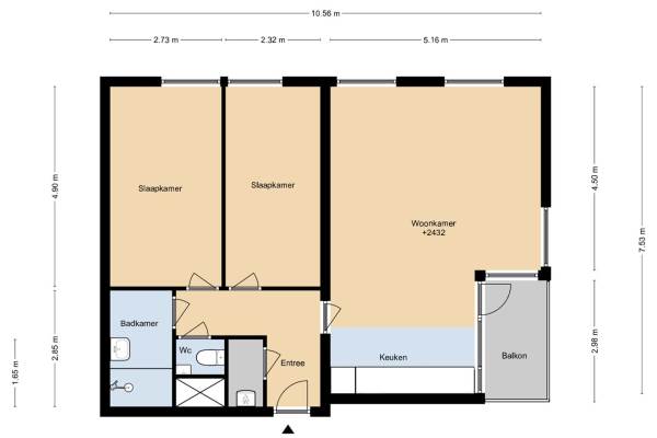
Het adres van deze woning uit 2001 is Watervogelstraat 312 te Den Haag. Het pand heeft een oppervlakte van 76m² en heeft 3 kamers kamers waarvan 2 slaapkamers. De geschatte waarde van deze woning is € 299.500.

Bekijk alle woningen in De Vissen

Gegevens van Portiekflat (appartement)

Bouwjaar
2001
Geschatte waarde
€ 299.500
Oppervlakte
76 m2
Inhoud
221 m3
Aantal kamers
3 kamers
Slaapkamers
2
Badkamers
1 apart toilet
Soort bouw
Bestaande bouw
Eigendomssituatie
Volle eigendom

Voorzieningen in de buurt

Boodschappen1,2 km
Grote supermarkt1,2 km
Cafetaria1,2 km
Restaurant1,0 km
Huisarts1,2 km
Ziekenhuis3,4 km
Kinderdagverblijf0,6 km
BSO0,5 km
Alle voorzieningen in De Vissen

Binnenkijken bij Watervogelstraat 312 te Den Haag

Meer meldingen in deze omgeving

112 melding
Donderdag 27-11-2025 om 16:17
Eidereendstraat, 2492NJ 's-Gravenhage

112 melding
Donderdag 27-11-2025 om 14:30
Harriët Freezerhof, 's-Gravenhage

112 melding
Donderdag 27-11-2025 om 09:13
Harriët Freezerhof, 's-Gravenhage

112 melding
Woensdag 26-11-2025 om 15:53
Watervogelstraat, 's-Gravenhage

112 melding
Woensdag 26-11-2025 om 12:40
Watervogelstraat, 's-Gravenhage

112 melding
Woensdag 26-11-2025 om 07:24
Bootsmansingel, 's-Gravenhage

112 melding
Dinsdag 25-11-2025 om 14:37
Dodaarsoever, 's-Gravenhage

Binnenkijken bij
Dinsdag 25-11-2025
Smientstraat 48, 2492PA Den Haag

Direct een e-mail ontvangen bij nieuwe meldingen in deze regio?

Meld je dan GRATIS aan voor de Oozo Alert service voor De Vissen

Instellen

Meer nieuws in De Vissen

Weten hoe eenvoudig het is om af te vallen? Zonder pillen en smeersels en zonder je in het zweet te werken!
Kijk op eenvoudig-afvallen.nl

© 2012 - 2025 OOZO.nl - info@oozo.nl - Gegevens verwijderen? | Disclaimer | Privacy statement