Woning Waterjufferhof 15 Den Haag

Waterjufferhof 15, 2492RG Den Haag

Ontvang updates voor De Vissen

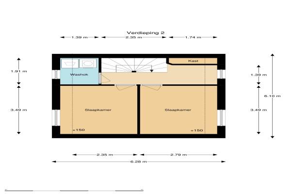
Het adres van deze woning uit 1999 is Waterjufferhof 15 te Den Haag. Het pand heeft een oppervlakte van 124m² en een perceeloppervlakte van 154m² en heeft 6 kamers kamers waarvan 5 slaapkamers. De geschatte waarde van deze woning is € 349.000.

Bekijk alle woningen in De Vissen

Gegevens van Eengezinswoning, tussenwoning

Bouwjaar
1999
Geschatte waarde
€ 349.000
Oppervlakte
124 m2
Inhoud
392 m3
Aantal kamers
6 kamers
Slaapkamers
5
Soort bouw
Bestaande bouw
Eigendomssituatie
Volle eigendom
Tuin
Achtertuin en voortuin

Voorzieningen in de buurt

Boodschappen1,2 km
Grote supermarkt1,2 km
Cafetaria1,2 km
Restaurant1,0 km
Huisarts1,2 km
Ziekenhuis3,4 km
Kinderdagverblijf0,6 km
BSO0,5 km
Alle voorzieningen in De Vissen

Binnenkijken bij Waterjufferhof 15 te Den Haag

Meer meldingen in deze omgeving

112 melding
Maandag 25-5-2026 om 23:16
Baarssingel, 2492MG 's-Gravenhage

112 melding
Maandag 25-5-2026 om 12:09
Houtkade, 's-Gravenhage

112 melding
Zondag 24-5-2026 om 22:59
Pijlstaartplein, 2492PD 's-Gravenhage

112 melding
Zondag 24-5-2026 om 17:22
Kokhaanhof, 2492TX 's-Gravenhage

112 melding
Zondag 24-5-2026 om 13:19
Graskarpersingel, 2492MV 's-Gravenhage

112 melding
Zondag 24-5-2026 om 00:34
Watervogelstraat, 's-Gravenhage

112 melding
Zaterdag 23-5-2026 om 20:21
Alikruiksingel, 2492SC 's-Gravenhage

112 melding
Zaterdag 23-5-2026 om 19:05
Harriët Freezerhof, 's-Gravenhage

Direct een e-mail ontvangen bij nieuwe meldingen in deze regio?

Meld je dan GRATIS aan voor de Oozo Alert service voor De Vissen

Instellen

Meer nieuws in De Vissen

Weten hoe eenvoudig het is om af te vallen? Zonder pillen en smeersels en zonder je in het zweet te werken!
Kijk op eenvoudig-afvallen.nl

© 2012 - 2026 OOZO.nl - info@oozo.nl - Gegevens verwijderen? | Disclaimer | Privacy statement