Woning Vrouw Avenweg 136 Den Haag

Vrouw Avenweg 136, 2493XW Den Haag

Ontvang updates voor Rietbuurt

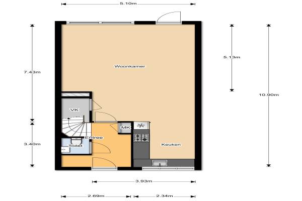
Het adres van deze woning uit 2010 is Vrouw Avenweg 136 te Den Haag. Het pand heeft een oppervlakte van 118m² en een perceeloppervlakte van 129m² en heeft 5 kamers kamers waarvan 4 slaapkamers. De geschatte waarde van deze woning is € 350.000.

Bekijk alle woningen in Rietbuurt

Gegevens van Eengezinswoning, tussenwoning

Bouwjaar
2010
Geschatte waarde
€ 350.000
Oppervlakte
118 m2
Inhoud
360 m3
Aantal kamers
5 kamers
Slaapkamers
4
Badkamers
1 badkamer en 1 apart toilet
Soort bouw
Bestaande bouw
Eigendomssituatie
Gemeentelijke erfpacht
Ligging
In woonwijk
Tuin
Achtertuin en voortuin
Achtertuin
54 m² (10m diep en 5,4m breed)

Voorzieningen in de buurt

Boodschappen1,5 km
Grote supermarkt1,5 km
Cafetaria1,2 km
Restaurant1,4 km
Huisarts0,8 km
Ziekenhuis2,3 km
Kinderdagverblijf0,6 km
BSO0,5 km
Alle voorzieningen in Rietbuurt

Binnenkijken bij Vrouw Avenweg 136 te Den Haag

Meer meldingen in deze omgeving

Nieuw bedrijf
April 2026
Vrouw Avenweg 139, 2493WT 's-Gravenhage

112 melding
Zondag 19-4-2026 om 13:41
Bellemeerstraat, 's-Gravenhage

112 melding
Zaterdag 18-4-2026 om 09:45
Oranjepolderhof, 2493VC 's-Gravenhage

112 melding
Donderdag 16-4-2026 om 10:53
Woudmeerstraat, 2493WR 's-Gravenhage

Binnenkijken bij
Donderdag 16-4-2026
Hoofpolderstraat 9, 2493XD Den Haag

112 melding
Dinsdag 14-4-2026 om 11:24
Oranjepolderhof, 2493VC 's-Gravenhage

Binnenkijken bij
Maandag 13-4-2026
Grietpolderstraat 11, 2493XB Den Haag

112 melding
Vrijdag 10-4-2026 om 14:25
Poelpolderstraat, 's-Gravenhage

Direct een e-mail ontvangen bij nieuwe meldingen in deze regio?

Meld je dan GRATIS aan voor de Oozo Alert service voor Rietbuurt

Instellen

Meer nieuws in Rietbuurt

Weten hoe eenvoudig het is om af te vallen? Zonder pillen en smeersels en zonder je in het zweet te werken!
Kijk op eenvoudig-afvallen.nl

© 2012 - 2026 OOZO.nl - info@oozo.nl - Gegevens verwijderen? | Disclaimer | Privacy statement