Woning Parelmoerhorst 302 Den Haag

Parelmoerhorst 302, 2592SL Den Haag

Ontvang updates voor Burgen en Horsten

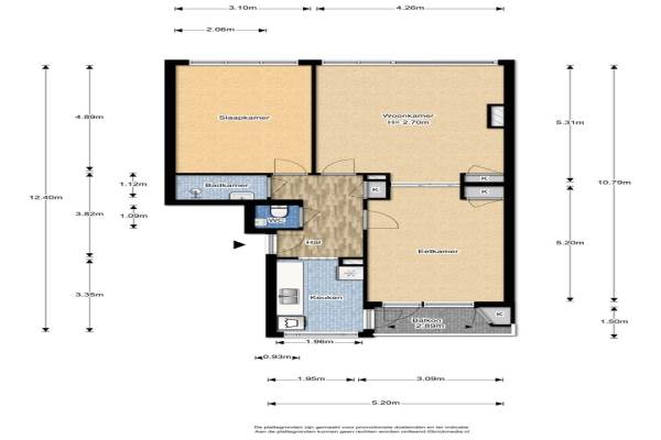
Het adres van deze woning uit 1959 is Parelmoerhorst 302 te Den Haag. Het pand heeft een oppervlakte van 74m² en heeft 3 kamers kamers waarvan 2 slaapkamers. De geschatte waarde van deze woning is € 285.000.

Bekijk alle woningen in Burgen en Horsten

Gegevens van Bovenwoning (appartement)

Bouwjaar
1959
Geschatte waarde
€ 285.000
Oppervlakte
74 m2
Inhoud
200 m3
Aantal kamers
3 kamers
Slaapkamers
2
Badkamers
1 badkamer en 1 apart toilet
Soort bouw
Bestaande bouw
Eigendomssituatie
Gemeentelijk eigendom belast met erfpacht (einddatum erfpacht: 31-12-2035)
Ligging
Aan bosrand, aan park, aan water en vrij uitzicht

Voorzieningen in de buurt

Boodschappen0,4 km
Grote supermarkt0,5 km
Cafetaria0,5 km
Restaurant0,5 km
Huisarts0,5 km
Ziekenhuis2,5 km
Kinderdagverblijf0,3 km
BSO0,3 km
Alle voorzieningen in Burgen en Horsten

Binnenkijken bij Parelmoerhorst 302 te Den Haag

Meer meldingen in deze omgeving

112 melding
Vrijdag 3-4-2026 om 21:59
De Horst, 2592HA 's-Gravenhage

112 melding
Vrijdag 3-4-2026 om 02:14
Toermalijnhorst, 2592JK 's-Gravenhage

112 melding
Donderdag 2-4-2026 om 20:33
Toermalijnhorst, 2592JK 's-Gravenhage

112 melding
Dinsdag 31-3-2026 om 16:07
Bordewijklaan, 2591XR 's-Gravenhage

112 melding
Dinsdag 31-3-2026 om 15:44
Bordewijklaan, 2591XR 's-Gravenhage

112 melding
Maandag 30-3-2026 om 23:14
Jadehorst, 2592EV 's-Gravenhage

112 melding
Maandag 30-3-2026 om 22:50
Vlamenburg, 's-Gravenhage

112 melding
Maandag 30-3-2026 om 18:07
Toermalijnhorst, 2592JK 's-Gravenhage

Direct een e-mail ontvangen bij nieuwe meldingen in deze regio?

Meld je dan GRATIS aan voor de Oozo Alert service voor Burgen en Horsten

Instellen

Meer nieuws in Burgen en Horsten

Weten hoe eenvoudig het is om af te vallen? Zonder pillen en smeersels en zonder je in het zweet te werken!
Kijk op eenvoudig-afvallen.nl

© 2012 - 2026 OOZO.nl - info@oozo.nl - Gegevens verwijderen? | Disclaimer | Privacy statement