Woning Vlaskamp 356 Den Haag

Vlaskamp 356, 2592AK Den Haag

Ontvang updates voor Kampen

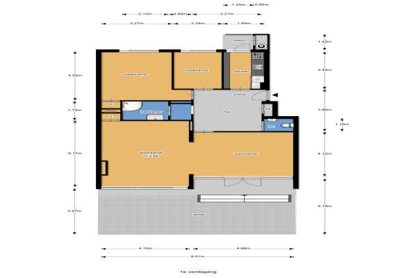
Het adres van deze woning uit 1966 is Vlaskamp 356 te Den Haag. Het pand heeft een oppervlakte van 101m² en heeft 4 kamers kamers waarvan 2 slaapkamers. De geschatte waarde van deze woning is € 299.000.

Bekijk alle woningen in Kampen

Gegevens van Portiekflat (appartement)

Bouwjaar
1966
Geschatte waarde
€ 299.000
Oppervlakte
101 m2
Inhoud
330 m3
Aantal kamers
4 kamers
Slaapkamers
2
Badkamers
1 badkamer en 1 apart toilet
Soort bouw
Bestaande bouw
Eigendomssituatie
Gemeentelijk eigendom belast met erfpacht (einddatum erfpacht: 31-12-2035)
Ligging
Aan rustige weg en in woonwijk
Tuin
Zonneterras

Voorzieningen in de buurt

Boodschappen0,6 km
Grote supermarkt0,7 km
Cafetaria0,6 km
Restaurant0,4 km
Huisarts0,6 km
Ziekenhuis2,4 km
Kinderdagverblijf0,5 km
BSO0,7 km
Alle voorzieningen in Kampen

Binnenkijken bij Vlaskamp 356 te Den Haag

Meer meldingen in deze omgeving

112 melding
Zaterdag 29-11-2025 om 12:35
Gerstkamp, 's-Gravenhage

112 melding
Zaterdag 29-11-2025 om 12:35
Gerstkamp, 's-Gravenhage

Binnenkijken bij
Zaterdag 29-11-2025
Haverkamp 170, 2592BL Den Haag

112 melding
Vrijdag 28-11-2025 om 18:57
Roggekamp, 's-Gravenhage

112 melding
Vrijdag 28-11-2025 om 11:44
Roggekamp, 's-Gravenhage

Binnenkijken bij
Vrijdag 28-11-2025
Haverkamp 96, 2592BJ Den Haag

Nieuw bedrijf
November 2025
Roggekamp 223, 2592VR 's-Gravenhage

112 melding
Woensdag 26-11-2025 om 17:59
Boekweitkamp, 's-Gravenhage

Direct een e-mail ontvangen bij nieuwe meldingen in deze regio?

Meld je dan GRATIS aan voor de Oozo Alert service voor Kampen

Instellen

Meer nieuws in Kampen

Weten hoe eenvoudig het is om af te vallen? Zonder pillen en smeersels en zonder je in het zweet te werken!
Kijk op eenvoudig-afvallen.nl

© 2012 - 2025 OOZO.nl - info@oozo.nl - Gegevens verwijderen? | Disclaimer | Privacy statement