Woning Margarethaland 523 Den Haag

Margarethaland 523, 2591VD Den Haag

Ontvang updates voor Landen

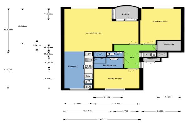
Het adres van deze woning uit 1986 is Margarethaland 523 te Den Haag. Het pand heeft een oppervlakte van 88m² en heeft 3 kamers kamers waarvan 2 slaapkamers. De geschatte waarde van deze woning is € 167.500.

Bekijk alle woningen in Landen

Gegevens van Portiekflat (appartement)

Bouwjaar
1986
Geschatte waarde
€ 167.500
Oppervlakte
88 m2
Inhoud
265 m3
Aantal kamers
3 kamers
Slaapkamers
2
Badkamers
1 badkamer en 1 apart toilet
Soort bouw
Bestaande bouw
Eigendomssituatie
Gemeentelijk eigendom belast met erfpacht (einddatum erfpacht: 30-11-2034)
Ligging
Aan park, aan rustige weg en vrij uitzicht

Voorzieningen in de buurt

Boodschappen0,4 km
Grote supermarkt0,5 km
Cafetaria0,7 km
Restaurant0,5 km
Huisarts0,5 km
Ziekenhuis2,4 km
Kinderdagverblijf0,7 km
BSO0,5 km
Alle voorzieningen in Landen

Binnenkijken bij Margarethaland 523 te Den Haag

Meer meldingen in deze omgeving

112 melding
Woensdag 3-12-2025 om 11:12
Ursulaland, 's-Gravenhage

Binnenkijken bij
Woensdag 3-12-2025
Suzannaland 230, 2591JM Den Haag

Nieuw bedrijf
December 2025
Hendrinaland 321, 2591TH 's-Gravenhage

Nieuw bedrijf
December 2025
Biancaland 5, 2591DA 's-Gravenhage

Nieuw bedrijf
December 2025
Margarethaland 132, 2591TR 's-Gravenhage

112 melding
Dinsdag 2-12-2025 om 17:46
Ursulaland, 's-Gravenhage

Nieuw bedrijf
December 2025
Isabellaland 2278, 2591CZ 's-Gravenhage

112 melding
Maandag 1-12-2025 om 23:47
Isabellaland, 's-Gravenhage

Direct een e-mail ontvangen bij nieuwe meldingen in deze regio?

Meld je dan GRATIS aan voor de Oozo Alert service voor Landen

Instellen

Meer nieuws in Landen

Weten hoe eenvoudig het is om af te vallen? Zonder pillen en smeersels en zonder je in het zweet te werken!
Kijk op eenvoudig-afvallen.nl

© 2012 - 2025 OOZO.nl - info@oozo.nl - Gegevens verwijderen? | Disclaimer | Privacy statement