Woning Isabellaland 1154 91 SZ Den Haag

Isabellaland 1154, 2591SZ 91 SZ Den Haag

Ontvang updates voor Landen

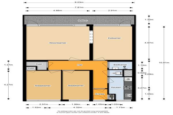
Het adres van deze woning is Isabellaland 1154 te 91 SZ Den Haag. Het pand heeft een oppervlakte van 84m² en heeft 4 kamers kamers waarvan 2 slaapkamers. De geschatte waarde van deze woning is € 125.000.

Bekijk alle woningen in Landen

Gegevens van Portiekflat (appartement)

Geschatte waarde
€ 125.000
Oppervlakte
84 m2
Inhoud
265 m3
Aantal kamers
4 kamers
Slaapkamers
2
Badkamers
1 badkamer en 1 apart toilet
Soort bouw
Bestaande bouw
Eigendomssituatie
Eigendom belast met erfpacht (einddatum erfpacht: 31-12-2035)
Ligging
Aan rustige weg, in woonwijk en vrij uitzicht

Voorzieningen in de buurt

Boodschappen0,4 km
Grote supermarkt0,5 km
Cafetaria0,7 km
Restaurant0,5 km
Huisarts0,5 km
Ziekenhuis2,4 km
Kinderdagverblijf0,7 km
BSO0,5 km
Alle voorzieningen in Landen

Binnenkijken bij Isabellaland 1154 te 91 SZ Den Haag

Meer meldingen in deze omgeving

112 melding
Zaterdag 21-2-2026 om 21:54
Isabellaland, 's-Gravenhage

112 melding
Zaterdag 21-2-2026 om 19:31
Isabellaland, 's-Gravenhage

112 melding
Zaterdag 21-2-2026 om 19:31
Isabellaland, 's-Gravenhage

112 melding
Zaterdag 21-2-2026 om 14:22
Margarethaland, 's-Gravenhage

112 melding
Vrijdag 20-2-2026 om 16:07
Isabellaland, 's-Gravenhage

112 melding
Vrijdag 20-2-2026 om 11:20
Suzannaland, 's-Gravenhage

112 melding
Vrijdag 20-2-2026 om 08:34
Suzannaland, 's-Gravenhage

Binnenkijken bij
Donderdag 19-2-2026
Robertaland 10, 2591HZ Den Haag

Direct een e-mail ontvangen bij nieuwe meldingen in deze regio?

Meld je dan GRATIS aan voor de Oozo Alert service voor Landen

Instellen

Meer nieuws in Landen

Weten hoe eenvoudig het is om af te vallen? Zonder pillen en smeersels en zonder je in het zweet te werken!
Kijk op eenvoudig-afvallen.nl

© 2012 - 2026 OOZO.nl - info@oozo.nl - Gegevens verwijderen? | Disclaimer | Privacy statement