Woning Verwoldestraat 34 Den Haag

Verwoldestraat 34, 2531HR Den Haag

Ontvang updates voor Moerwijk-Oost

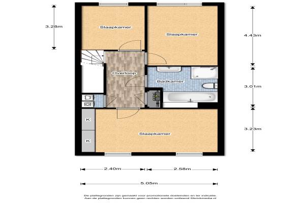
Het adres van deze woning uit 2010 is Verwoldestraat 34 te Den Haag. Het pand heeft een oppervlakte van 135m² en heeft 5 kamers kamers waarvan 3 slaapkamers. De geschatte waarde van deze woning is € 299.500.

Bekijk alle woningen in Moerwijk-Oost

Gegevens van Eengezinswoning, tussenwoning

Bouwjaar
2010
Geschatte waarde
€ 299.500
Oppervlakte
135 m2
Inhoud
365 m3
Aantal kamers
5 kamers
Slaapkamers
3
Badkamers
1 badkamer en 1 apart toilet
Soort bouw
Bestaande bouw
Eigendomssituatie
Gemeentelijke erfpacht
Ligging
In woonwijk
Tuin
Voortuin en zonneterras

Voorzieningen in de buurt

Boodschappen0,2 km
Grote supermarkt0,3 km
Cafetaria0,2 km
Restaurant0,3 km
Huisarts0,3 km
Ziekenhuis2,0 km
Kinderdagverblijf0,2 km
BSO0,2 km
Alle voorzieningen in Moerwijk-Oost

Binnenkijken bij Verwoldestraat 34 te Den Haag

Meer meldingen in deze omgeving

112 melding
Donderdag 11-12-2025 om 19:10
Twickelstraat, 's-Gravenhage

Nieuw bedrijf
December 2025
Ulenpasstraat 218, 2531PM 's-Gravenhage

Nieuw bedrijf
December 2025
Schoonhetenstraat 24, 2531RM 's-Gravenhage

112 melding
Woensdag 10-12-2025 om 19:03
Twickelstraat, 's-Gravenhage

112 melding
Woensdag 10-12-2025 om 12:58
Twickelstraat, 's-Gravenhage

112 melding
Woensdag 10-12-2025 om 12:06
Ulenpasstraat, 's-Gravenhage

112 melding
Dinsdag 9-12-2025 om 18:05
Twickelstraat, 's-Gravenhage

112 melding
Maandag 8-12-2025 om 10:40
Twickelstraat, 's-Gravenhage

Direct een e-mail ontvangen bij nieuwe meldingen in deze regio?

Meld je dan GRATIS aan voor de Oozo Alert service voor Moerwijk-Oost

Instellen

Meer nieuws in Moerwijk-Oost

Weten hoe eenvoudig het is om af te vallen? Zonder pillen en smeersels en zonder je in het zweet te werken!
Kijk op eenvoudig-afvallen.nl

© 2012 - 2025 OOZO.nl - info@oozo.nl - Gegevens verwijderen? | Disclaimer | Privacy statement