Woning Apeldoornselaan 33 Den Haag

Apeldoornselaan 33, 2573LB Den Haag

Ontvang updates voor Oostbroek-Noord

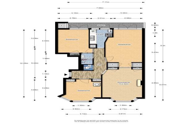
Het adres van deze woning uit 1929 is Apeldoornselaan 33 te Den Haag. Het pand heeft een oppervlakte van 86m² en heeft 4 kamers kamers waarvan 2 slaapkamers. De geschatte waarde van deze woning is € 137.500.

Bekijk alle woningen in Oostbroek-Noord

Gegevens van Portiekflat (appartement)

Bouwjaar
1929
Geschatte waarde
€ 137.500
Oppervlakte
86 m2
Inhoud
304 m3
Aantal kamers
4 kamers
Slaapkamers
2
Badkamers
1 badkamer en 1 apart toilet
Soort bouw
Bestaande bouw
Eigendomssituatie
Volle eigendom
Ligging
Aan drukke weg, in centrum, in woonwijk en vrij uitzicht

Voorzieningen in de buurt

Boodschappen0,2 km
Grote supermarkt0,2 km
Cafetaria0,2 km
Restaurant0,2 km
Huisarts0,2 km
Ziekenhuis1,6 km
Kinderdagverblijf0,2 km
BSO0,2 km
Alle voorzieningen in Oostbroek-Noord

Binnenkijken bij Apeldoornselaan 33 te Den Haag

Meer meldingen in deze omgeving

Nieuw bedrijf
December 2025
Nunspeetlaan 131, 2573HD 's-Gravenhage

Nieuw bedrijf
December 2025
Dierenselaan 47, 2573KB 's-Gravenhage

Nieuw bedrijf
December 2025
Nunspeetlaan 92, 2573HJ 's-Gravenhage

Nieuw bedrijf
December 2025
Heelsumstraat 67, 2573NG 's-Gravenhage

Nieuw bedrijf
December 2025
Nunspeetlaan 104, 2573HK 's-Gravenhage

Nieuw bedrijf
December 2025
Otterlostraat 20, 2573AV 's-Gravenhage

Nieuw bedrijf
December 2025
Loosduinsekade 340, 2571CD 's-Gravenhage

Nieuw bedrijf
December 2025
Apeldoornselaan 62, 2573LN 's-Gravenhage

Direct een e-mail ontvangen bij nieuwe meldingen in deze regio?

Meld je dan GRATIS aan voor de Oozo Alert service voor Oostbroek-Noord

Instellen

Meer nieuws in Oostbroek-Noord

Weten hoe eenvoudig het is om af te vallen? Zonder pillen en smeersels en zonder je in het zweet te werken!
Kijk op eenvoudig-afvallen.nl

© 2012 - 2025 OOZO.nl - info@oozo.nl - Gegevens verwijderen? | Disclaimer | Privacy statement