Woning Apeldoornselaan 102 Den Haag

Apeldoornselaan 102, 2573LP Den Haag

Ontvang updates voor Oostbroek-Noord

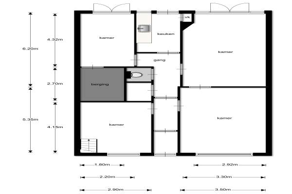
Het adres van deze woning uit 1927 is Apeldoornselaan 102 te Den Haag. Het pand heeft een oppervlakte van 87m² en heeft 4 kamers kamers waarvan 3 slaapkamers. De geschatte waarde van deze woning is € 175.000.

Bekijk alle woningen in Oostbroek-Noord

Gegevens van Benedenwoning (appartement met open portiek)

Bouwjaar
1927
Geschatte waarde
€ 175.000
Oppervlakte
87 m2
Inhoud
265 m3
Aantal kamers
4 kamers
Slaapkamers
3
Badkamers
1 apart toilet
Soort bouw
Bestaande bouw
Eigendomssituatie
Volle eigendom
Ligging
In woonwijk
Tuin
Achtertuin
Achtertuin
83 m² (11m diep en 7,5m breed)

Voorzieningen in de buurt

Boodschappen0,2 km
Grote supermarkt0,2 km
Cafetaria0,2 km
Restaurant0,2 km
Huisarts0,2 km
Ziekenhuis1,6 km
Kinderdagverblijf0,2 km
BSO0,2 km
Alle voorzieningen in Oostbroek-Noord

Binnenkijken bij Apeldoornselaan 102 te Den Haag

Meer meldingen in deze omgeving

112 melding
Dinsdag 27-1-2026 om 14:42
Voorthuizenstraat, 2573AG 's-Gravenhage

Nieuw bedrijf
Januari 2026
Nunspeetlaan 80, 2573HJ 's-Gravenhage

Binnenkijken bij
Zondag 25-1-2026
De la Reyweg 203, 2571ED Den Haag

112 melding
Donderdag 22-1-2026 om 04:13
Hoog Buurlostraat, 's-Gravenhage

Nieuw bedrijf
Januari 2026
Bennekomstraat 13, 2573RA 's-Gravenhage

Nieuw bedrijf
Januari 2026
Beekbergenstraat 46, 2573ND 's-Gravenhage

Nieuw bedrijf
Januari 2026
Beekbergenstraat 46, 2573ND 's-Gravenhage

Binnenkijken bij
Woensdag 21-1-2026
Zuiderparklaan 218, 2574HV Den Haag

Direct een e-mail ontvangen bij nieuwe meldingen in deze regio?

Meld je dan GRATIS aan voor de Oozo Alert service voor Oostbroek-Noord

Instellen

Meer nieuws in Oostbroek-Noord

Weten hoe eenvoudig het is om af te vallen? Zonder pillen en smeersels en zonder je in het zweet te werken!
Kijk op eenvoudig-afvallen.nl

© 2012 - 2026 OOZO.nl - info@oozo.nl - Gegevens verwijderen? | Disclaimer | Privacy statement