Woning Loosduinsekade 484 Den Haag

Loosduinsekade 484, 2571CM Den Haag

Ontvang updates voor Rustenburg

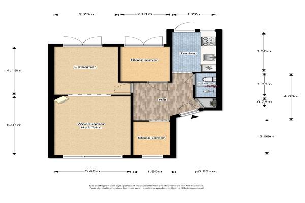
Het adres van deze woning uit 1926 is Loosduinsekade 484 te Den Haag. Het pand heeft een oppervlakte van 60m² en heeft 4 kamers kamers waarvan 2 slaapkamers. De geschatte waarde van deze woning is € 139.500.

Bekijk alle woningen in Rustenburg

Gegevens van Benedenwoning (appartement)

Bouwjaar
1926
Geschatte waarde
€ 139.500
Oppervlakte
60 m2
Inhoud
203 m3
Aantal kamers
4 kamers
Slaapkamers
2
Badkamers
1 badkamer
Soort bouw
Bestaande bouw
Eigendomssituatie
Gemeentelijke erfpacht
Ligging
Aan drukke weg, in woonwijk, vrij uitzicht en beschutte ligging
Tuin
Achtertuin
Achtertuin
60 m² (8m diep en 7,5m breed)

Voorzieningen in de buurt

Boodschappen0,2 km
Grote supermarkt0,4 km
Cafetaria0,2 km
Restaurant0,3 km
Huisarts0,4 km
Ziekenhuis1,9 km
Kinderdagverblijf0,3 km
BSO0,4 km
Alle voorzieningen in Rustenburg

Binnenkijken bij Loosduinsekade 484 te Den Haag

Meer meldingen in deze omgeving

112 melding
Donderdag 21-5-2026 om 17:02
Weesperstraat, 's-Gravenhage

112 melding
Donderdag 21-5-2026 om 10:48
Ankeveensestraat, 's-Gravenhage

112 melding
Donderdag 21-5-2026 om 10:47
Ankeveensestraat, 's-Gravenhage

112 melding
Donderdag 21-5-2026 om 10:47
Ankeveensestraat, 's-Gravenhage

112 melding
Dinsdag 19-5-2026 om 14:18
Bussumsestraat, 's-Gravenhage

Nieuw bedrijf
Mei 2026
Soestdijksekade 546, 2574CB 's-Gravenhage

112 melding
Dinsdag 19-5-2026 om 12:35
Bussumsestraat, 's-Gravenhage

Nieuw bedrijf
Mei 2026
Larensestraat 94, 2574VL 's-Gravenhage

Direct een e-mail ontvangen bij nieuwe meldingen in deze regio?

Meld je dan GRATIS aan voor de Oozo Alert service voor Rustenburg

Instellen

Meer nieuws in Rustenburg

Weten hoe eenvoudig het is om af te vallen? Zonder pillen en smeersels en zonder je in het zweet te werken!
Kijk op eenvoudig-afvallen.nl

© 2012 - 2026 OOZO.nl - info@oozo.nl - Gegevens verwijderen? | Disclaimer | Privacy statement