Woning Zeesluisweg 62J Den Haag

Zeesluisweg 62J, 2583DR Den Haag

Ontvang updates voor Vissershaven

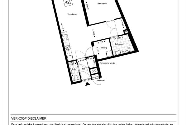
Het adres van deze woning uit 2024 is Zeesluisweg 62J te Den Haag. Het pand heeft een oppervlakte van 62m² en heeft 2 kamers kamers waarvan 1 slaapkamers. De geschatte waarde van deze woning is € 440.000.

Bekijk alle woningen in Vissershaven

Gegevens van Portiekflat (appartement)

Bouwjaar
2024
Geschatte waarde
€ 440.000
Oppervlakte
62 m2
Inhoud
162 m3
Aantal kamers
2 kamers
Slaapkamers
1
Badkamers
1 badkamer en 1 apart toilet
Soort bouw
Nieuwbouw
Ligging
In woonwijk en zeezicht

Voorzieningen in de buurt

Boodschappen0,3 km
Grote supermarkt0,5 km
Cafetaria0,3 km
Restaurant0,2 km
Huisarts0,6 km
Ziekenhuis2,4 km
Kinderdagverblijf0,3 km
BSO0,5 km
Alle voorzieningen in Vissershaven

Binnenkijken bij Zeesluisweg 62J te Den Haag

Meer meldingen in deze omgeving

112 melding
Maandag 23-2-2026 om 12:00
Windasstraat, 's-Gravenhage

112 melding
Maandag 23-2-2026 om 11:50
Windasstraat, 's-Gravenhage

112 melding
Zondag 22-2-2026 om 13:04
Vissershavenweg, 's-Gravenhage

Binnenkijken bij
Zaterdag 21-2-2026
Dr. Lelykade 62A, 2583CM Den Haag

112 melding
Zaterdag 21-2-2026 om 00:02
Menninckstraat, 's-Gravenhage

Nieuw bedrijf
Februari 2026
Zeesluisweg 62Q, 2583DS 's-Gravenhage

Nieuw bedrijf
Februari 2026
Menninckstraat 161, 2583BP 's-Gravenhage

Nieuw bedrijf
Februari 2026
Dr. Lelykade 46D, 2583CM 's-Gravenhage

Direct een e-mail ontvangen bij nieuwe meldingen in deze regio?

Meld je dan GRATIS aan voor de Oozo Alert service voor Vissershaven

Instellen

Meer nieuws in Vissershaven

Weten hoe eenvoudig het is om af te vallen? Zonder pillen en smeersels en zonder je in het zweet te werken!
Kijk op eenvoudig-afvallen.nl

© 2012 - 2026 OOZO.nl - info@oozo.nl - Gegevens verwijderen? | Disclaimer | Privacy statement