Woning Zeesluisweg 60C Den Haag

Zeesluisweg 60C, 2583DR Den Haag

Ontvang updates voor Vissershaven

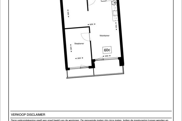
Het adres van deze woning uit 2024 is Zeesluisweg 60C te Den Haag. Het pand heeft een oppervlakte van 62m² en heeft 3 kamers kamers waarvan 2 slaapkamers. De geschatte waarde van deze woning is € 425.000.

Bekijk alle woningen in Vissershaven

Gegevens van Portiekflat (appartement)

Bouwjaar
2024
Geschatte waarde
€ 425.000
Oppervlakte
62 m2
Inhoud
160 m3
Aantal kamers
3 kamers
Slaapkamers
2
Badkamers
1 badkamer en 1 apart toilet
Soort bouw
Nieuwbouw
Ligging
In woonwijk en zeezicht

Voorzieningen in de buurt

Boodschappen0,3 km
Grote supermarkt0,5 km
Cafetaria0,3 km
Restaurant0,2 km
Huisarts0,6 km
Ziekenhuis2,4 km
Kinderdagverblijf0,3 km
BSO0,5 km
Alle voorzieningen in Vissershaven

Binnenkijken bij Zeesluisweg 60C te Den Haag

Meer meldingen in deze omgeving

112 melding
Zaterdag 27-12-2025 om 12:38
Koppelstokstraat, 's-Gravenhage

112 melding
Zaterdag 27-12-2025 om 12:33
Koppelstokstraat, 's-Gravenhage

112 melding
Zaterdag 27-12-2025 om 12:32
Koppelstokstraat, 's-Gravenhage

112 melding
Vrijdag 26-12-2025 om 19:35
Datheenstraat, 's-Gravenhage

Nieuw bedrijf
December 2025
Korbootstraat 25A, 2583CV 's-Gravenhage

Nieuw bedrijf
December 2025
Hellingweg 58, 2583WH 's-Gravenhage

Nieuw bedrijf
December 2025
Koppelstokstraat 13, 2583CB 's-Gravenhage

Nieuw bedrijf
December 2025
Kranenburgweg 143, 2583ER 's-Gravenhage

Direct een e-mail ontvangen bij nieuwe meldingen in deze regio?

Meld je dan GRATIS aan voor de Oozo Alert service voor Vissershaven

Instellen

Meer nieuws in Vissershaven

Weten hoe eenvoudig het is om af te vallen? Zonder pillen en smeersels en zonder je in het zweet te werken!
Kijk op eenvoudig-afvallen.nl

© 2012 - 2025 OOZO.nl - info@oozo.nl - Gegevens verwijderen? | Disclaimer | Privacy statement