Woning Weteringkade 13 Den Haag

Weteringkade 13, 2515AK Den Haag

Ontvang updates voor Rivierenbuurt-Zuid

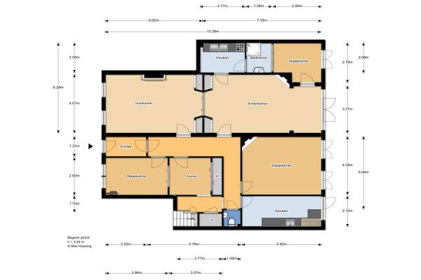
Het adres van deze woning uit 1916 is Weteringkade 13 te Den Haag. Het pand heeft een oppervlakte van 148m² en heeft 3 kamers kamers waarvan 3 slaapkamers. De geschatte waarde van deze woning is € 250.000.

Bekijk alle woningen in Rivierenbuurt-Zuid

Gegevens van Benedenwoning (appartement)

Bouwjaar
1916
Geschatte waarde
€ 250.000
Oppervlakte
148 m2
Inhoud
605 m3
Aantal kamers
3 kamers
Slaapkamers
3
Badkamers
1 badkamer en 1 apart toilet
Soort bouw
Bestaande bouw
Eigendomssituatie
Volle eigendom
Tuin
Achtertuin
Achtertuin
90 m² (9m diep en 10,5m breed)

Voorzieningen in de buurt

Boodschappen0,2 km
Grote supermarkt0,7 km
Cafetaria0,2 km
Restaurant0,3 km
Huisarts0,5 km
Ziekenhuis2,5 km
Kinderdagverblijf0,2 km
BSO0,2 km
Alle voorzieningen in Rivierenbuurt-Zuid

Binnenkijken bij Weteringkade 13 te Den Haag

Meer meldingen in deze omgeving

Binnenkijken bij
Zaterdag 10-1-2026
Weteringkade 23, 2515AK Den Haag

Nieuw bedrijf
December 2025
Weteringkade 103B, 2515AM 's-Gravenhage

112 melding
Maandag 29-12-2025 om 20:14
Scheepmakersstraat, 's-Gravenhage

Nieuw bedrijf
December 2025
Spaarneplein 2, 2515VK 's-Gravenhage

Binnenkijken bij
Zondag 14-12-2025
Scheepmakersstraat 43, 2515VA Den Haag

112 melding
Dinsdag 9-12-2025 om 08:41
Spaarneplein, 2515VK 's-Gravenhage

112 melding
Dinsdag 9-12-2025 om 08:39
Spaarneplein, 2515VK 's-Gravenhage

112 melding
Vrijdag 5-12-2025 om 21:05
Grebbestraat, 's-Gravenhage

Direct een e-mail ontvangen bij nieuwe meldingen in deze regio?

Meld je dan GRATIS aan voor de Oozo Alert service voor Rivierenbuurt-Zuid

Instellen

Meer nieuws in Rivierenbuurt-Zuid

Weten hoe eenvoudig het is om af te vallen? Zonder pillen en smeersels en zonder je in het zweet te werken!
Kijk op eenvoudig-afvallen.nl

© 2012 - 2026 OOZO.nl - info@oozo.nl - Gegevens verwijderen? | Disclaimer | Privacy statement