Woning Rhododendronstraat 48 Den Haag

Rhododendronstraat 48, 2563TB Den Haag

Ontvang updates voor Heesterbuurt

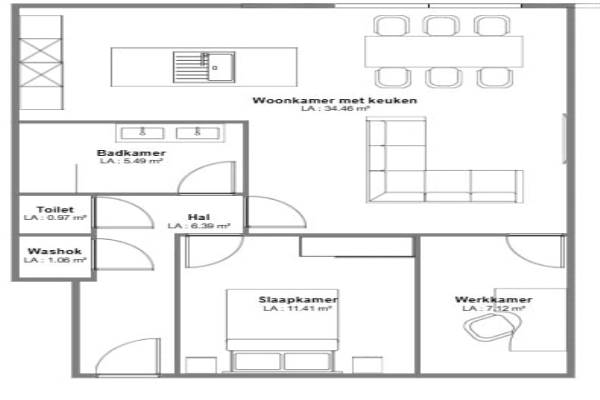
Het adres van deze woning uit 1926 is Rhododendronstraat 48 te Den Haag. Het pand heeft een oppervlakte van 69m² en heeft 3 kamers kamers waarvan 2 slaapkamers. De geschatte waarde van deze woning is € 365.000.

Bekijk alle woningen in Heesterbuurt

Gegevens van Benedenwoning (appartement)

Bouwjaar
1926
Geschatte waarde
€ 365.000
Oppervlakte
69 m2
Inhoud
246 m3
Aantal kamers
3 kamers
Slaapkamers
2
Badkamers
1 badkamer en 1 apart toilet
Soort bouw
Bestaande bouw
Tuin
Achtertuin
Achtertuin
36 m² (9,00 meter diep en 4,00 meter breed)

Voorzieningen in de buurt

Boodschappen0,3 km
Grote supermarkt0,5 km
Cafetaria0,3 km
Restaurant0,3 km
Huisarts0,2 km
Ziekenhuis1,6 km
Kinderdagverblijf0,3 km
BSO0,4 km
Alle voorzieningen in Heesterbuurt

Binnenkijken bij Rhododendronstraat 48 te Den Haag

Meer meldingen in deze omgeving

Nieuw bedrijf
December 2025
Lavendelstraat 89, 2563PR 's-Gravenhage

Nieuw bedrijf
December 2025
Goudenregenstraat 29, 2565EM 's-Gravenhage

Nieuw bedrijf
December 2025
Rhododendronstraat 122, 2563TD 's-Gravenhage

Nieuw bedrijf
December 2025
1e Braamstraat 14, 2563HV 's-Gravenhage

Nieuw bedrijf
December 2025
Laan van Meerdervoort 566A, 2563BM 's-Gravenhage

Nieuw bedrijf
December 2025
Goudenregenstraat 23, 2565EM 's-Gravenhage

Nieuw bedrijf
December 2025
Maagdepalmstraat 7, 2563TE 's-Gravenhage

112 melding
Dinsdag 2-12-2025 om 12:48
Gagelplein, 's-Gravenhage

Direct een e-mail ontvangen bij nieuwe meldingen in deze regio?

Meld je dan GRATIS aan voor de Oozo Alert service voor Heesterbuurt

Instellen

Meer nieuws in Heesterbuurt

Weten hoe eenvoudig het is om af te vallen? Zonder pillen en smeersels en zonder je in het zweet te werken!
Kijk op eenvoudig-afvallen.nl

© 2012 - 2025 OOZO.nl - info@oozo.nl - Gegevens verwijderen? | Disclaimer | Privacy statement