Woning Kingstonplantsoen 7 Den Haag

Kingstonplantsoen 7, 2548HK Den Haag

Ontvang updates voor Hoge Veld

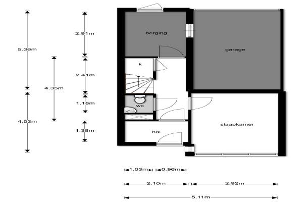
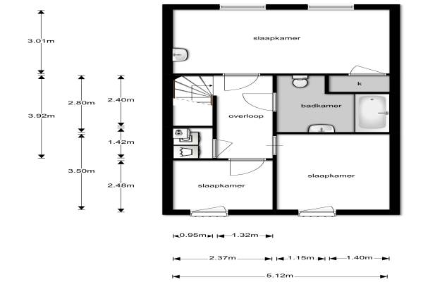
Het adres van deze woning uit 2005 is Kingstonplantsoen 7 te Den Haag. Het pand heeft een oppervlakte van 128m² en een perceeloppervlakte van 61m² en heeft 4 kamers kamers waarvan 3 slaapkamers. De geschatte waarde van deze woning is € 300.000.

Bekijk alle woningen in Hoge Veld

Gegevens van Eengezinswoning, tussenwoning (drive-in woning)

Bouwjaar
2005
Geschatte waarde
€ 300.000
Oppervlakte
128 m2
Inhoud
495 m3
Aantal kamers
4 kamers
Slaapkamers
3
Badkamers
1 apart toilet
Soort bouw
Bestaande bouw
Eigendomssituatie
Gemeentelijk eigendom belast met erfpacht
Ligging
Aan rustige weg en in woonwijk
Tuin
Voortuin en zonneterras

Voorzieningen in de buurt

Boodschappen0,5 km
Grote supermarkt0,5 km
Cafetaria0,5 km
Restaurant0,5 km
Huisarts0,7 km
Ziekenhuis3,5 km
Kinderdagverblijf0,3 km
BSO0,3 km
Alle voorzieningen in Hoge Veld

Binnenkijken bij Kingstonplantsoen 7 te Den Haag

Meer meldingen in deze omgeving

Nieuw bedrijf
December 2025
Charlestonplantsoen 18, 2548HX 's-Gravenhage

Nieuw bedrijf
December 2025
Hunsingosingel 14, 2548LN 's-Gravenhage

Nieuw bedrijf
December 2025
New Yorksingel 28, 2548HV 's-Gravenhage

Nieuw bedrijf
December 2025
Dallashof 36, 2548JG 's-Gravenhage

Nieuw bedrijf
December 2025
Atlantastraat 12, 2548JK 's-Gravenhage

Nieuw bedrijf
December 2025
Atlantastraat 73, 2548JL 's-Gravenhage

112 melding
Donderdag 11-12-2025 om 17:24
Westergosingel, 's-Gravenhage

112 melding
Donderdag 11-12-2025 om 04:02
Chicagostraat, 's-Gravenhage

Direct een e-mail ontvangen bij nieuwe meldingen in deze regio?

Meld je dan GRATIS aan voor de Oozo Alert service voor Hoge Veld

Instellen

Meer nieuws in Hoge Veld

Weten hoe eenvoudig het is om af te vallen? Zonder pillen en smeersels en zonder je in het zweet te werken!
Kijk op eenvoudig-afvallen.nl

© 2012 - 2025 OOZO.nl - info@oozo.nl - Gegevens verwijderen? | Disclaimer | Privacy statement