Woning Abbenbroekweg 16 Den Haag

Abbenbroekweg 16, 2597NT Den Haag

Ontvang updates voor Duttendel

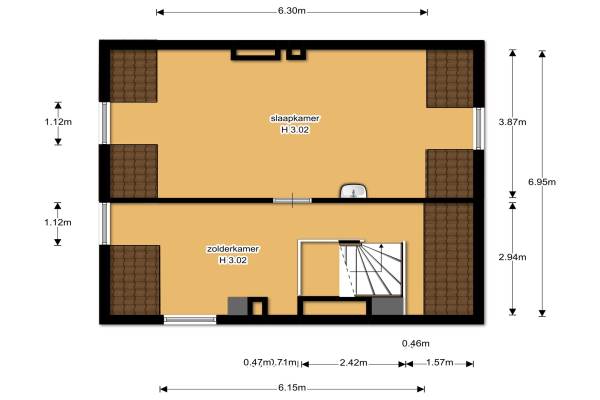
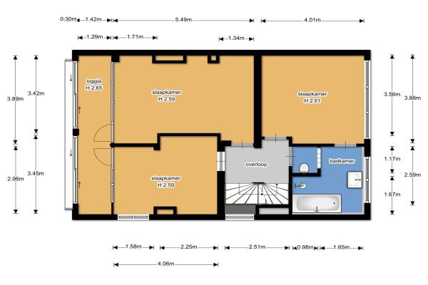
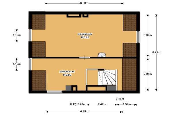
Het adres van deze woning uit 1959 is Abbenbroekweg 16 te Den Haag. Het pand heeft een oppervlakte van 275m² en een perceeloppervlakte van 359m² en heeft 9 kamers kamers waarvan 4 slaapkamers. De geschatte waarde van deze woning is € 849.000.

Bekijk alle woningen in Duttendel

Gegevens van Eengezinswoning, halfvrijstaande woning

Bouwjaar
1959
Geschatte waarde
€ 849.000
Oppervlakte
275 m2
Inhoud
890 m3
Aantal kamers
9 kamers
Slaapkamers
4
Badkamers
1 badkamer
Soort bouw
Bestaande bouw
Eigendomssituatie
Erfpacht (einddatum erfpacht: 31-12-2030)
Ligging
Aan rustige weg en in woonwijk
Tuin
Voortuin en zijtuin

Voorzieningen in de buurt

Boodschappen1,2 km
Grote supermarkt1,5 km
Cafetaria0,4 km
Restaurant1,0 km
Huisarts1,3 km
Ziekenhuis1,5 km
Kinderdagverblijf0,4 km
BSO0,4 km
Alle voorzieningen in Duttendel

Binnenkijken bij Abbenbroekweg 16 te Den Haag

Meer meldingen in deze omgeving

Nieuw bedrijf
November 2025
Van Alkemadelaan 1044, 2597BJ 's-Gravenhage

Nieuw bedrijf
November 2025
Duinroosweg 7, 2597KJ 's-Gravenhage

Binnenkijken bij
Dinsdag 25-11-2025
Van Alkemadelaan 1188, 2597BM Den Haag

112 melding
Dinsdag 25-11-2025 om 02:00
Maurits de Brauwweg, 's-Gravenhage

112 melding
Donderdag 13-11-2025 om 09:23
Jean François van Royenweg, 's-Gravenhage

112 melding
Vrijdag 7-11-2025 om 12:12
Gerrit Kasteinweg, 's-Gravenhage

112 melding
Vrijdag 7-11-2025 om 11:47
Gerrit Kasteinweg, 's-Gravenhage

112 melding
Donderdag 6-11-2025 om 03:42
Gerrit Kasteinweg, 's-Gravenhage

Direct een e-mail ontvangen bij nieuwe meldingen in deze regio?

Meld je dan GRATIS aan voor de Oozo Alert service voor Duttendel

Instellen

Meer nieuws in Duttendel

Weten hoe eenvoudig het is om af te vallen? Zonder pillen en smeersels en zonder je in het zweet te werken!
Kijk op eenvoudig-afvallen.nl

© 2012 - 2025 OOZO.nl - info@oozo.nl - Gegevens verwijderen? | Disclaimer | Privacy statement