Woning Badhuisweg 245 Den Haag

Badhuisweg 245, 2597JR Den Haag

Ontvang updates voor Westbroekpark

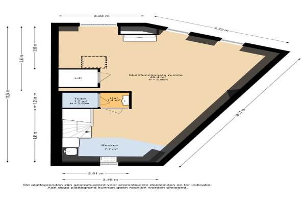
Het adres van deze woning uit 1908 is Badhuisweg 245 te Den Haag. Het pand heeft een oppervlakte van 381m² en een perceeloppervlakte van 225m² en heeft 7 kamers kamers waarvan 5 slaapkamers. De geschatte waarde van deze woning is € 1.600.000.

Bekijk alle woningen in Westbroekpark

Gegevens van Herenhuis, hoekwoning

Bouwjaar
1908
Geschatte waarde
€ 1.600.000
Oppervlakte
381 m2
Inhoud
2 m3
Aantal kamers
7 kamers
Slaapkamers
5
Badkamers
2 badkamers en 2 aparte toiletten
Soort bouw
Bestaande bouw
Eigendomssituatie
Volle eigendom
Ligging
Aan bosrand en vrij uitzicht
Tuin
Zonneterras

Voorzieningen in de buurt

Boodschappen0,9 km
Grote supermarkt1,1 km
Cafetaria0,3 km
Restaurant0,7 km
Huisarts0,8 km
Ziekenhuis2,1 km
Kinderdagverblijf0,8 km
BSO0,5 km
Alle voorzieningen in Westbroekpark

Binnenkijken bij Badhuisweg 245 te Den Haag

Meer meldingen in deze omgeving

112 melding
Woensdag 22-4-2026 om 14:52
Plesmanweg, 's-Gravenhage

112 melding
Zaterdag 18-4-2026 om 16:21
Plesmanweg, 's-Gravenhage

112 melding
Zaterdag 18-4-2026 om 16:20
Plesmanweg, 's-Gravenhage

Binnenkijken bij
Dinsdag 14-4-2026
Badhuisweg 131, 2597JM Den Haag

Binnenkijken bij
Vrijdag 10-4-2026
Nieuwe Parklaan 75, 2597LB Den Haag

Binnenkijken bij
Maandag 6-4-2026
Wagenaarweg 14, 2597LN Den Haag

112 melding
Woensdag 25-3-2026 om 17:06
Plesmanweg, 's-Gravenhage

Binnenkijken bij
Maandag 23-3-2026
Van Lennepweg 50, 2597LK Den Haag

Direct een e-mail ontvangen bij nieuwe meldingen in deze regio?

Meld je dan GRATIS aan voor de Oozo Alert service voor Westbroekpark

Instellen

Meer nieuws in Westbroekpark

Weten hoe eenvoudig het is om af te vallen? Zonder pillen en smeersels en zonder je in het zweet te werken!
Kijk op eenvoudig-afvallen.nl

© 2012 - 2026 OOZO.nl - info@oozo.nl - Gegevens verwijderen? | Disclaimer | Privacy statement