Woning Wingerd 68 Den Haag

Wingerd 68, 2496VC Den Haag

Ontvang updates voor Bosweide

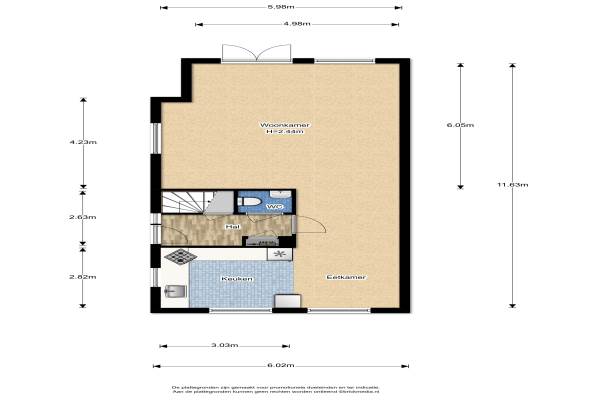
Het adres van deze woning uit 2000 is Wingerd 68 te Den Haag. Het pand heeft een oppervlakte van 140m² en een perceeloppervlakte van 306m² en heeft 5 kamers kamers waarvan 4 slaapkamers. De geschatte waarde van deze woning is € 539.000.

Bekijk alle woningen in Bosweide

Gegevens van Eengezinswoning, 2-onder-1-kapwoning

Bouwjaar
2000
Geschatte waarde
€ 539.000
Oppervlakte
140 m2
Inhoud
487 m3
Aantal kamers
5 kamers
Slaapkamers
4
Badkamers
1 badkamer en 1 apart toilet
Soort bouw
Bestaande bouw
Eigendomssituatie
Volle eigendom
Ligging
Aan rustige weg, in woonwijk en in bosrijke omgeving
Tuin
Achtertuin en voortuin
Achtertuin
70 m² (10m diep en 7m breed)

Voorzieningen in de buurt

Boodschappen1,2 km
Grote supermarkt1,4 km
Cafetaria1,2 km
Restaurant1,3 km
Huisarts1,0 km
Ziekenhuis2,1 km
Kinderdagverblijf1,0 km
BSO0,6 km
Alle voorzieningen in Bosweide

Binnenkijken bij Wingerd 68 te Den Haag

Meer meldingen in deze omgeving

Nieuw bedrijf
November 2025
Guirlande 60, 2496VX 's-Gravenhage

112 melding
Donderdag 13-11-2025 om 18:51
Wingerd, 2496VK 's-Gravenhage

112 melding
Donderdag 13-11-2025 om 18:51
Wingerd, 's-Gravenhage

112 melding
Donderdag 13-11-2025 om 18:51
Wingerd, 2496VK 's-Gravenhage

112 melding
Donderdag 13-11-2025 om 18:50
Wingerd, 's-Gravenhage

112 melding
Donderdag 13-11-2025 om 18:49
Wingerd, 's-Gravenhage

112 melding
Woensdag 12-11-2025 om 12:29
Laan van Kans, 's-Gravenhage

Binnenkijken bij
Dinsdag 11-11-2025
Boswinde 13, 2496WC Den Haag

Direct een e-mail ontvangen bij nieuwe meldingen in deze regio?

Meld je dan GRATIS aan voor de Oozo Alert service voor Bosweide

Instellen

Meer nieuws in Bosweide

Weten hoe eenvoudig het is om af te vallen? Zonder pillen en smeersels en zonder je in het zweet te werken!
Kijk op eenvoudig-afvallen.nl

© 2012 - 2025 OOZO.nl - info@oozo.nl - Gegevens verwijderen? | Disclaimer | Privacy statement