Woning Fluitschiplaan 381 Den Haag

Fluitschiplaan 381, 2496XZ Den Haag

Ontvang updates voor De Venen

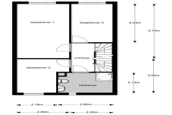
Het adres van deze woning uit 2010 is Fluitschiplaan 381 te Den Haag. Het pand heeft een oppervlakte van 144m² en een perceeloppervlakte van 110m² en heeft 6 kamers kamers waarvan 5 slaapkamers. De geschatte waarde van deze woning is € 399.000.

Bekijk alle woningen in De Venen

Gegevens van Eengezinswoning, tussenwoning

Bouwjaar
2010
Geschatte waarde
€ 399.000
Oppervlakte
144 m2
Inhoud
410 m3
Aantal kamers
6 kamers
Slaapkamers
5
Badkamers
1 badkamer en 1 apart toilet
Soort bouw
Bestaande bouw
Eigendomssituatie
Volle eigendom
Ligging
In woonwijk
Tuin
Achtertuin en voortuin
Achtertuin
38 m² (7m diep en 5,41m breed)

Voorzieningen in de buurt

Boodschappen1,5 km
Grote supermarkt1,5 km
Cafetaria1,4 km
Restaurant0,3 km
Huisarts0,7 km
Ziekenhuis0,7 km
Kinderdagverblijf0,2 km
BSO0,3 km
Alle voorzieningen in De Venen

Binnenkijken bij Fluitschiplaan 381 te Den Haag

Meer meldingen in deze omgeving

112 melding
Dinsdag 4-11-2025 om 18:22
Brigantijnlaan, 's-Gravenhage

112 melding
Maandag 3-11-2025 om 20:01
Kiekendiefstraat, 2496RP 's-Gravenhage

112 melding
Zaterdag 1-11-2025 om 16:59
Brigantijnlaan, 's-Gravenhage

112 melding
Zaterdag 1-11-2025 om 16:59
Brigantijnlaan, 's-Gravenhage

112 melding
Zaterdag 1-11-2025 om 02:43
Brigantijnlaan, 's-Gravenhage

Nieuw bedrijf
Oktober 2025
Fluitschiplaan 53, 2496XW 's-Gravenhage

112 melding
Dinsdag 28-10-2025 om 09:02
Katschiplaan, 's-Gravenhage

112 melding
Dinsdag 28-10-2025 om 01:18
Brigantijnlaan, 's-Gravenhage

Direct een e-mail ontvangen bij nieuwe meldingen in deze regio?

Meld je dan GRATIS aan voor de Oozo Alert service voor De Venen

Instellen

Meer nieuws in De Venen

Weten hoe eenvoudig het is om af te vallen? Zonder pillen en smeersels en zonder je in het zweet te werken!
Kijk op eenvoudig-afvallen.nl

© 2012 - 2025 OOZO.nl - info@oozo.nl - Gegevens verwijderen? | Disclaimer | Privacy statement