Woning Rietgorsstraat 4 Den Haag

Rietgorsstraat 4, 2496ML Den Haag

Ontvang updates voor Morgenweide

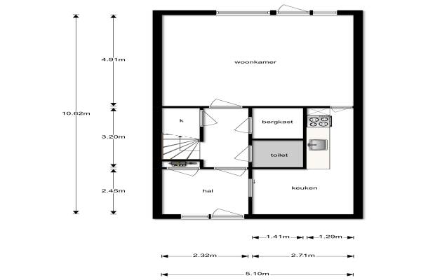
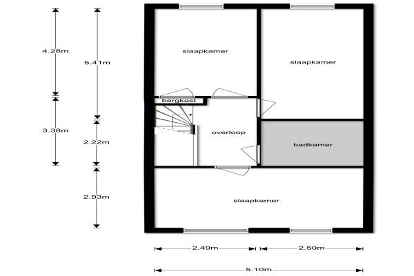
Het adres van deze woning uit 2003 is Rietgorsstraat 4 te Den Haag. Het pand heeft een oppervlakte van 110m² en een perceeloppervlakte van 123m² en heeft 4 kamers kamers waarvan 3 slaapkamers. De geschatte waarde van deze woning is € 275.000.

Bekijk alle woningen in Morgenweide

Gegevens van Eengezinswoning, tussenwoning

Bouwjaar
2003
Geschatte waarde
€ 275.000
Oppervlakte
110 m2
Inhoud
315 m3
Aantal kamers
4 kamers
Slaapkamers
3
Badkamers
1 apart toilet
Soort bouw
Bestaande bouw
Eigendomssituatie
Volle eigendom
Ligging
Aan rustige weg en in woonwijk
Tuin
Achtertuin en voortuin
Achtertuin
49 m² (9m diep en 5,4m breed)

Voorzieningen in de buurt

Boodschappen0,8 km
Grote supermarkt0,9 km
Cafetaria0,8 km
Restaurant0,7 km
Huisarts0,7 km
Ziekenhuis1,1 km
Kinderdagverblijf0,2 km
BSO0,2 km
Alle voorzieningen in Morgenweide

Binnenkijken bij Rietgorsstraat 4 te Den Haag

Meer meldingen in deze omgeving

Binnenkijken bij
Zaterdag 6-12-2025
Roerdompstraat 21, 2496NB Den Haag

Nieuw bedrijf
December 2025
Oude Kustlijn 74, 2496SE 's-Gravenhage

Nieuw bedrijf
December 2025
Zomertalinglaan 23, 2496RL 's-Gravenhage

Nieuw bedrijf
December 2025
Knobbelzwaansingel 215, 2496LN 's-Gravenhage

112 melding
Donderdag 4-12-2025 om 09:59
Oude Kustlijn, 's-Gravenhage

112 melding
Dinsdag 2-12-2025 om 22:40
Zilverplevierhof, 2496NS 's-Gravenhage

112 melding
Dinsdag 2-12-2025 om 19:07
Blauwe Reigersingel, 2496HA 's-Gravenhage

112 melding
Dinsdag 2-12-2025 om 19:06
Blauwe Reigersingel, 's-Gravenhage

Direct een e-mail ontvangen bij nieuwe meldingen in deze regio?

Meld je dan GRATIS aan voor de Oozo Alert service voor Morgenweide

Instellen

Meer nieuws in Morgenweide

Weten hoe eenvoudig het is om af te vallen? Zonder pillen en smeersels en zonder je in het zweet te werken!
Kijk op eenvoudig-afvallen.nl

© 2012 - 2025 OOZO.nl - info@oozo.nl - Gegevens verwijderen? | Disclaimer | Privacy statement