Woning Torenvalklaan 67 Den Haag

Torenvalklaan 67, 2496ND Den Haag

Ontvang updates voor Morgenweide

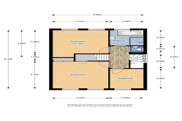
Het adres van deze woning uit 2003 is Torenvalklaan 67 te Den Haag. Het pand heeft een oppervlakte van 188m² en een perceeloppervlakte van 325m² en heeft 5 kamers kamers waarvan 4 slaapkamers. De geschatte waarde van deze woning is € 525.000.

Bekijk alle woningen in Morgenweide

Gegevens van Herenhuis, hoekwoning

Bouwjaar
2003
Geschatte waarde
€ 525.000
Oppervlakte
188 m2
Inhoud
710 m3
Aantal kamers
5 kamers
Slaapkamers
4
Badkamers
1 badkamer en 2 aparte toiletten
Soort bouw
Bestaande bouw
Eigendomssituatie
Volle eigendom
Ligging
Aan rustige weg, in woonwijk en vrij uitzicht
Tuin
Achtertuin, voortuin en zijtuin
Achtertuin
79 m² (10,8m diep en 7,35m breed)

Voorzieningen in de buurt

Boodschappen0,8 km
Grote supermarkt0,9 km
Cafetaria0,8 km
Restaurant0,7 km
Huisarts0,7 km
Ziekenhuis1,1 km
Kinderdagverblijf0,2 km
BSO0,2 km
Alle voorzieningen in Morgenweide

Binnenkijken bij Torenvalklaan 67 te Den Haag

Meer meldingen in deze omgeving

112 melding
Woensdag 31-12-2025 om 10:26
Steentijdsingel, 's-Gravenhage

Nieuw bedrijf
December 2025
Warnaarslaan 22, 2496RA 's-Gravenhage

Nieuw bedrijf
December 2025
Patrijsplantsoen 34, 2496MB 's-Gravenhage

112 melding
Dinsdag 30-12-2025 om 21:10
Nootdorpse Landingslaan, 's-Gravenhage

112 melding
Dinsdag 30-12-2025 om 16:04
Zilvermeeuwlaan, 's-Gravenhage

112 melding
Dinsdag 30-12-2025 om 15:51
Zilvermeeuwlaan, 's-Gravenhage

Nieuw bedrijf
December 2025
Koekoekhof 10, 2496LM 's-Gravenhage

Nieuw bedrijf
December 2025
Zilvermeeuwlaan 136, 2496NW 's-Gravenhage

Direct een e-mail ontvangen bij nieuwe meldingen in deze regio?

Meld je dan GRATIS aan voor de Oozo Alert service voor Morgenweide

Instellen

Meer nieuws in Morgenweide

Weten hoe eenvoudig het is om af te vallen? Zonder pillen en smeersels en zonder je in het zweet te werken!
Kijk op eenvoudig-afvallen.nl

© 2012 - 2025 OOZO.nl - info@oozo.nl - Gegevens verwijderen? | Disclaimer | Privacy statement