Woning Parcivalring 139 Den Bosch

Parcivalring 139, 5221LC Den Bosch

Ontvang updates voor De Haverleij

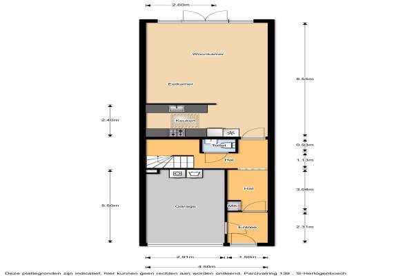
Het adres van deze woning uit 2007 is Parcivalring 139 te Den Bosch. Het pand heeft een oppervlakte van 127m² en een perceeloppervlakte van 122m² en heeft 4 kamers kamers waarvan 3 slaapkamers. De geschatte waarde van deze woning is € 330.000.

Bekijk alle woningen in De Haverleij

Gegevens van Eengezinswoning, tussenwoning

Bouwjaar
2007
Geschatte waarde
€ 330.000
Oppervlakte
127 m2
Inhoud
410 m3
Aantal kamers
4 kamers
Slaapkamers
3
Badkamers
1 badkamer en 2 aparte toiletten
Soort bouw
Bestaande bouw
Eigendomssituatie
Volle eigendom
Ligging
Aan park, aan rustige weg, in woonwijk, vrij uitzicht en landelijk gelegen
Tuin
Achtertuin
Achtertuin
35 m² (7,25m diep en 4,8m breed)

Voorzieningen in de buurt

Boodschappen1,4 km
Grote supermarkt1,4 km
Cafetaria2,0 km
Restaurant1,0 km
Huisarts1,7 km
Ziekenhuis6,1 km
Kinderdagverblijf0,6 km
BSO0,6 km
Alle voorzieningen in De Haverleij

Binnenkijken bij Parcivalring 139 te Den Bosch

Meer meldingen in deze omgeving

Nieuw bedrijf
December 2025
Wuyvenhaerd 66, 5221RD 's-Hertogenbosch

112 melding
Donderdag 11-12-2025 om 19:53
Holterveste, 5221KL Engelen

Binnenkijken bij
Woensdag 3-12-2025
Beeckendael 39, 5221PL Den Bosch

Binnenkijken bij
Vrijdag 28-11-2025
Parcivalring 96, 5221LP Den Bosch

Nieuw bedrijf
November 2025
Parcivalring 43, 5221LA 's-Hertogenbosch

Binnenkijken bij
Dinsdag 25-11-2025
Parcivalring 158, 5221LS Den Bosch

Binnenkijken bij
Vrijdag 21-11-2025
Wuyvenhaerd 12, 5221RA Den Bosch

Binnenkijken bij
Woensdag 19-11-2025
Wuyvenhaerd 43, 5221RC Den Bosch

Direct een e-mail ontvangen bij nieuwe meldingen in deze regio?

Meld je dan GRATIS aan voor de Oozo Alert service voor De Haverleij

Instellen

Meer nieuws in De Haverleij

Weten hoe eenvoudig het is om af te vallen? Zonder pillen en smeersels en zonder je in het zweet te werken!
Kijk op eenvoudig-afvallen.nl

© 2012 - 2025 OOZO.nl - info@oozo.nl - Gegevens verwijderen? | Disclaimer | Privacy statement